Beschreibung
BAUGRUNDSTÜCK MIT EINREICHPLANUNG
Zum Verkauf steht das 612m² große Grundstück mit genehmigter Planung ein Einfamilienhaus auf 3 Ebenen
Wohnfläche: ca. 265 m²
Keller: ca. 107m²
Terrassen: ca. 103m²
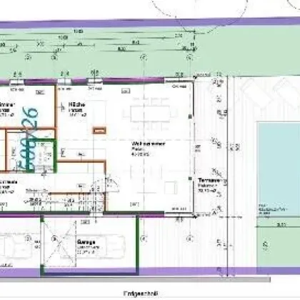
Erdgeschoss:
Vorzimmer, Wohnzimmer mit offener Küche und Ausgang auf eine Terrasse, Arbeitszimmer, WC
1.Obergeschoss:
3 Schlafzimmer mit en-suite Bädern
Dachgeschoss:
2 Schlafzimmer, Bad, WC und 2 Terrassen
Kellergeschoss:
Technikraum ,Fitnessraum sowie Garagenplatz.
Kaufpreis mit genehmigter Planung: EUR 1.800.000,-
Ein Energieausweis wurde vom Eigentümer angefordert und wird nachgereicht.
Zum Verkauf steht das 612m² große Grundstück mit genehmigter Planung ein Einfamilienhaus auf 3 Ebenen
Wohnfläche: ca. 265 m²
Keller: ca. 107m²
Terrassen: ca. 103m²
Erdgeschoss:
Vorzimmer, Wohnzimmer mit offener Küche und Ausgang auf eine Terrasse, Arbeitszimmer, WC
1.Obergeschoss:
3 Schlafzimmer mit en-suite Bädern
Dachgeschoss:
2 Schlafzimmer, Bad, WC und 2 Terrassen
Kellergeschoss:
Technikraum ,Fitnessraum sowie Garagenplatz.
Kaufpreis mit genehmigter Planung: EUR 1.800.000,-
Ein Energieausweis wurde vom Eigentümer angefordert und wird nachgereicht.
In der Umgebung
Bus
< 1km
U-Bahn
< 3km
Straßenbahn
< 1km
Bahnhof
< 1km
Autobahnanschluss
< 4km
Arzt
< 1km
Apotheke
< 1km
Klinik
< 1km
Krankenhaus
< 1km
Supermarkt
< 1km
Bäckerei
< 1km
Einkaufszentrum
< 4km
Schule
< 1km
Kindergarten
< 1km
Universität
< 2km
Höhere Schule
< 5km
Bankomat
< 1km
Bank
< 1km
Post
< 1km
Polizei
< 1km
Quelle: OpenStreetMap / Entfernungsangaben Luftlinie