Trend Logo

Baulandbetriebsgebiet im Gewerbegebiet Eisenstadt

7000 Eisenstadt / Burgenland
2.620 m2
Grundfläche
€ 1.200.000,00
Kaufpreis

Beschreibung

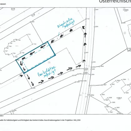
Zum Verkauf gelangt eine Gewerbefläche 2620m²  in zentraler Lage bei der Mattersburgerstraße im Gewerbegebiet Eisenstadt

im Bauland Betriebsgebiet,

es gibt bereits eine befestigte Ringstraße für diese und die benachbarte Liegenschaft, die für PKW und LKW als Zu- und Abfahrt dient

zusätzlich sind bereits  befestigte Stellplätze vorhanden mit ca. 520m², Ringstraße und Parkplätze sind im Kaufpreis inkludiert 

Die zukünftige Nettonutzfläche beträgt ca. 3600m² auf 3 Etagen,

es ist eine Erweiterung möglich!

Das Baugrundstück ist aufgeschlossen: Wasser, Abwasser, Strom, Gas

 

Kaufpreis  1,2 Mio

 

branchenfrei, bestens geeignet für Motels, Hotels und Gastronomie, Gewerbebetriebe, Fachmarktzentren Büros Ordinationen

Das Objekt befindet sich im Gewerbegebiet Eisenstadt in unmittelbarer Nähe zum zum ARBÖ Pannennotruf,

sowie ca. 200 weiteren Gewerbebetrieben und Verkaufsmärkten

Perfekte Autobahn Anbindung

In unmittelbarer Nähe S31, B50  

8 min mit dem Auto nach Eisenstadt Zentrum

4 min zum Bahnhof Eisenstadt

 

Bei Interesse kontaktieren Sie bitte

Mag Monika Feichtinger
Email: office@bar-immobilien.at
Tel: 0699 11 54 54 99

B.A.R! Immobilien & Verwaltung GmbH
Sterngasse 3/2/6
A- 1010 Wien


Weiter Objekte finden Sie unter www.bar-immobilen.at

Bitte beachten Sie, dass wir aufgrund der Nachweispflicht dem Eigentümern gegenüber ausschließlich Anfragen mit vollständigen Kontaktdaten (Name, Wohnadresse, Email, Telefonnummer) beantworten können! Es gelten die allgemeinen Geschäftsbedingungen. Obige Angaben basieren auf Informationen und Unterlagen des Vermieters und der Kommunalbehörde. Änderungen und Irrtümer vorbehalten.

Provision: Der guten Ordnung halber möchten wir festhalten, dass im Falle eines Abschlusses mit Ihnen oder einem von Ihnen namhaft gemachten Dritten unser Honorar (lt. Honorarverordnung für Immobilienmakler, BGBl. 262 und 297/1996) 3 Bruttomonatsmieten beträgt zzgl. der gesetzlichen MwSt.  

 

In der Umgebung
Bus
< 1km
Autobahnanschluss
< 1km
Bahnhof
< 2km
Bank
< 1km
Bankomat
< 1km
Post
< 1km
Polizei
< 2km
Schule
< 2km
Kindergarten
< 2km
Universität
< 1km
Höhere Schule
< 2km
Supermarkt
< 1km
Bäckerei
< 1km
Einkaufszentrum
< 1km
Arzt
< 1km
Apotheke
< 2km
Krankenhaus
< 3km
Quelle: OpenStreetMap / Entfernungsangaben Luftlinie

Anbieter kontaktieren

Letzte Änderung: 19.05.2026, 15:28:51 Uhr; Referenz-Nummer: 9036