Trend Logo

BAUTRÄGER / baubewilligtes Neubau-Projekt in 1220 Wien (Stadlau, Mühlwasser) mit 1.260m² Nutzfläche

1220 Wien
940 m2
Wohnfläche
1.253 m2
Grundfläche
€ 650.000,00
Kaufpreis

Beschreibung

Zum Verkauf steht ein rechtskräftig baubewilligtes Neubau-Projekt auf einem Baurechtsgrundstück (100 Jahre) in 1220 Wien mit einer Nutzfläche von 1.260 m². Das Projekt ist vollständig entwickelt mit kompletter Ausführungsplanung, inkl. Bodengutachten, E-Planung, HKLS-Planung, Statik und Bauphysik.

Preis

Der Verkaufspreis beträgt 650.000 EUR, es besteht auch die möglich der Optierung in die Umsatzsteuer wobei der Verkaufspreis (netto) 590.000 EUR zzgl. 20% USt. betragen würde. Der Baurechtszins beträgt weniger als 2 EUR/m²/Monat.

 

Grundstück

Das Grundstück weist ein Größe von 1.253m² und eine Widmung W I 6,5m ogk BB auf. Die Liegenschaft wurde vermessen und im Grenzkataster eingetragen. 

 

Objektbeschreibung

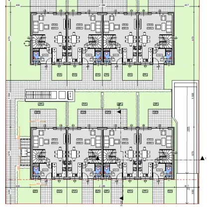
Das Objekt teilt sich in 2 Baukörper auf mit jeweils 4 Wohneinheiten/Reihenhäuser, sowie einer vollständig darunter befindlichen Tiefgarage mit 9 KFZ-Stellplätzen, Haustechnikräumen, Fahrradraum und je Wohneinheit Kellerräume. Die Wohneinheiten weisen eine Wohnnutzfläche zwischen 115-120 m² auf, sowie Balkone, Terrassen und Grünflächen und Kellerräume.

Die Beheizung erfolgt energieeffizient über Wärmepumpen, die Kühlung ist mit fan-coils vorgesehen und die Eigenstromerzeugung über eine gemeinschaftliche PV-Anlage.

Das Objekt wurde bereits in der Planung für ein klimaaktiv-Zertifikat vorgesehen/registriert.

 

FLÄCHENAUFSTELLUNG
  • 940 m² Wohnnutzfläche
  • 104 m² Balkone
  • 132 m² Terrassen
  • 535 m² Grünfläche
  • 203 m² Keller
  • 9 KFZ-Stellplätze (in der Tiefgarage)

Wir weisen darauf hin, dass zwischen dem Vermittler und dem zu vermittelnden Dritten ein familiäres oder wirtschaftliches Naheverhältnis besteht.

Der Vermittler ist als Doppelmakler tätig.

Lagebeschreibung

Die Liegenschaft befindet sich im 22. Wiener Gemeindebezirk. Sie liegt in unmittelbarer Nähe zum Mühlwasser, einem beliebten Naherholungsgebiet. Die Umgebung ist geprägt von Wohnhäusern und Grünflächen. In der Nähe gibt es eine Bushaltestelle, von der aus man bequem ins Stadtzentrum gelangen kann. Auch der Autobahnanschluss ist nur wenige Minuten entfernt, was eine gute Anbindung an das Straßennetz bietet. Die Lage ist somit sowohl für Pendler als auch für Naturliebhaber die die Nähe zur Stadt nicht missen möchten.

In der Umgebung
Bus
1km
U-Bahn
2km
Straßenbahn
2km
Bahnhof
2km
Autobahnanschluss
1km
Supermarkt
2km
Bäckerei
2km
Einkaufszentrum
3km
Arzt
2km
Apotheke
2km
Klinik
2km
Krankenhaus
2km
Schule
2km
Kindergarten
2km
Universität
2km
Höhere Schule
5km
Bankomat
2km
Bank
2km
Post
2km
Polizei
3km
Quelle: OpenStreetMap / Entfernungsangaben Luftlinie

Anbieter kontaktieren

Letzte Änderung: 04.12.2025, 12:17:41 Uhr; Referenz-Nummer: 7368/54