Trend Logo

BESTANDSFREIES - ATTRAKTIVES GESCHÄFTSLOKAL NÄHE HAUPTBAHNHOF UND BELVEDERE

1040 Wien
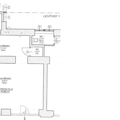
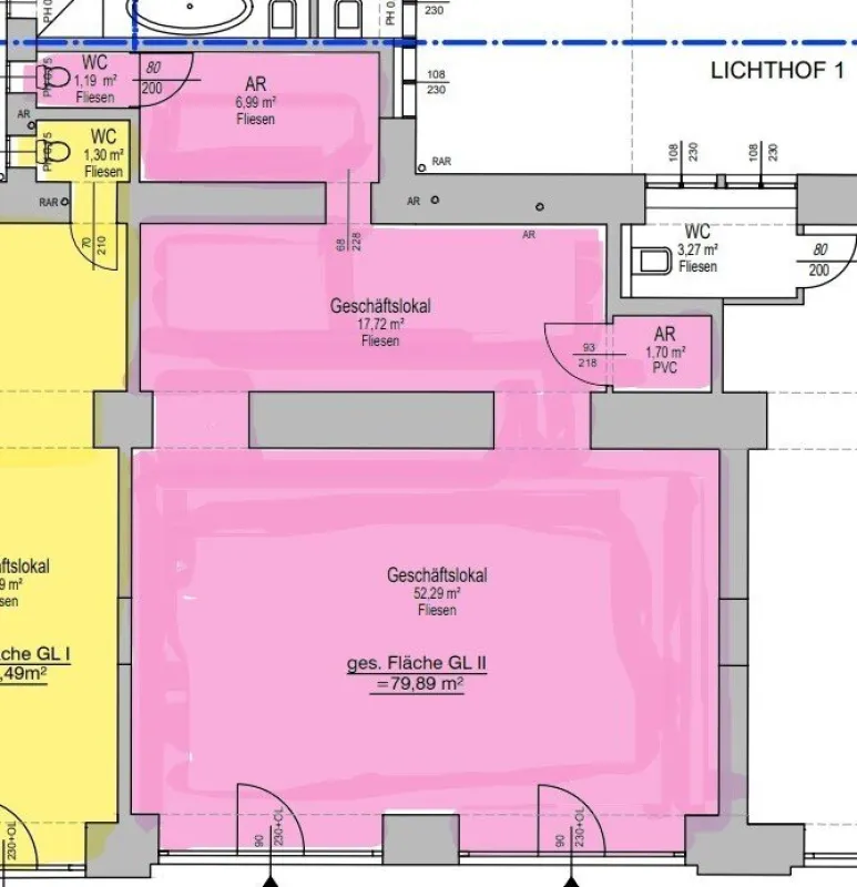
79,89 m2
Nutzfläche
€ 549.000,00
Kaufpreis

Beschreibung

Zum Verkauf gelangt ein äußerst attraktives Geschäftslokal im 4. Wiener Gemeindebezirk, in der Nähe des Schloss Belvedere. 

Das Lokal befindet sich in einem im Jahre 1900 erbauten, gepflegten Gebäude. Alle Räumlichkeiten befinden sich in einem gepflegten Zustand. Geheizt wird mittels Gasetagenheizung.

Im selben Haus stehen aktuell zwei weitere Lokale zum Verkauf, es besteht daher auch die Möglichkeit alle drei Geschäftslokale als Paket zu erwerben.

Beschreibung:

Das Lokal, welches als Friseur genützt worden ist, teilt sich folgendermaßen auf: eine Lokalfläche, zwei Abstellräume und ein WC. Die gesamte Fläche beträgt hier ca. 79,89 m². Sie betreten das Lokal und befinden sich in der ersten Lokalfläche. Dort befindet sich eine kleine Rezeption und einige Friseurstühle. Wenn Sie weitergehen kommen Sie zur zweiten Lokalfläche. Danach gelangen Sie zum ersten Abstellraum. Dort befindet sich ein Waschbecken und diverse Schränke. Im hinteren Teil befindet sich die Toilette. Ein zweiter kleiner Abstellraum befindet sich auf der anderen Seite.

Diese Fläche steht zur Zeit zur Vermietung zu folgenden Konditionen: 

Soll Ertrag im Überblick:

  NFL in m² HMZ p.M. HMZ/m² HMZ p.a. Kaufpreis
           
Top 2 79,89 € 1.990,— € 24,87 € 23.880 € 549 000 

 

Kosten:

  • Kaufpreis: € 549 000,-- zzgl. 20% Ust.
  • Jahresnetto-HMZ-Soll Ertrag: ca. € 23.880,-
  • Provision: 3% vom Kaufpreis zzgl. 20% USt.

 

Kontakt:
 

Herrn Samuel Ayub Stahl 

Mobil: 0676430 39 39

Email: sas@reales.at

 

Wir freuen uns auf Ihr Interesse !

Lagebeschreibung

Die Infrastruktur und die Lage des Geschäftslokals ist ausgezeichnet! In der Nähe befinden sich Geschäfte des täglichen Bedarfs wie beispielsweise Supermärkte, Banken, Apotheken etc. Fußläufig entfernt befindet sich der Hauptbahnhof mit der zugehörigen U-Bahn-Linie U1 sowie diverse weitere öffentliche Verkehrsmittel wie beispielsweise die S-Bahn. In der unmittelbaren Umgebung befinden sich zusätzlich charmante Restaurants und zahlreiche Cafés. Das Schloss Belvedere erreicht man in wenigen Minuten.

In der Umgebung
Bus
< 1km
U-Bahn
< 1km
Straßenbahn
< 1km
Bahnhof
< 1km
Autobahnanschluss
< 2km
Supermarkt
< 1km
Bäckerei
< 1km
Einkaufszentrum
< 1km
Arzt
< 1km
Apotheke
< 1km
Klinik
< 1km
Krankenhaus
< 2km
Schule
< 1km
Kindergarten
< 1km
Universität
< 1km
Höhere Schule
< 1km
Bankomat
< 1km
Bank
< 1km
Post
< 1km
Polizei
< 1km
Quelle: OpenStreetMap / Entfernungsangaben Luftlinie

Anbieter kontaktieren

Letzte Änderung: 29.01.2026, 10:41:00 Uhr; Referenz-Nummer: 18675