Trend Logo

Büro / Schulung / Ausstellung - variabel & flexibel - frequentierte Lage

5020 Salzburg
228,07 m2
Nutzfläche
€ 3.129,00
Nettomiete

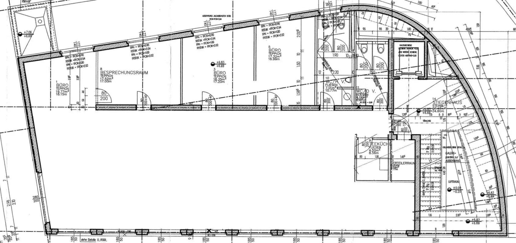
Beschreibung

Zur Vermietung gelangt diese gut belichtete Büroetage im 2. Obergeschoss. Die Büroetage ist über das großzügige Treppenhaus bzw. Fahrstuhl erschlossen.

Büro / Schulung / Ausstellung - variabel & flexibel - frequentierte Lage

Die Mieteinheit befindet sich derzeit im Rohbauzustand. Entsprechend erfolgt die Raumaufteilung nach Mieterwunsch.

Die Mieteinheit ist ausgestattet mit einer Außenjalousien, Teeküchenanschluss sowie zwei Damen- und zwei Herren-WC Einheiten.

Ausreichend Pkw-Stellplätze können in der hauseigenen Tiefgarage gesondert angemietet werden.

Mieterprovision: max. 3 Bruttomonatsmieten je nach Mietvertragslaufzeit zzgl. Ust.

Das Angebot ist unverbindlich und freibleibend. Weitere Angebote finden Sie auf unserer Webseite www.i-3.at.

 

Lagebeschreibung

Salzburg Gnigl/Parsch - Das markante Büro- und Geschäftsgebäude besticht durch seine dominate Sicht- und Werbewirksamkeit in Ecksituation einer stark frequentierten Ausfallstraße. Die S-Bahnstation Salzburg-Gnigl ist nur wenige Schritte entfernt. Die Obus-Station in Richtung Salzburger Altstadt. Lieferung und Sam befindet sich vor der Tür. Eine Vielzahl an Einkaufmöglichkeiten (u.a. Merkur, Hofer, Spar), Banken und Restaurants im direkten Umfeld vorhanden.

In der Umgebung
Bus
1km
Bahnhof
1km
Autobahnanschluss
3km
Flughafen
5km
Arzt
1km
Apotheke
1km
Klinik
1km
Krankenhaus
2km
Schule
1km
Kindergarten
1km
Universität
2km
Höhere Schule
1km
Bank
1km
Bankomat
1km
Post
1km
Polizei
1km
Supermarkt
1km
Bäckerei
1km
Einkaufszentrum
1km
Quelle: OpenStreetMap / Entfernungsangaben Luftlinie

Anbieter kontaktieren

Letzte Änderung: 03.09.2025, 10:26:20 Uhr; Referenz-Nummer: 967