Trend Logo

Doppelhaus Projekt auf ruhigem Baugrundstück in Pennewang/Wiesham!

4624 Wiesham / Oberösterreich
888 m2
Grundfläche
€ 195.000,00
Kaufpreis

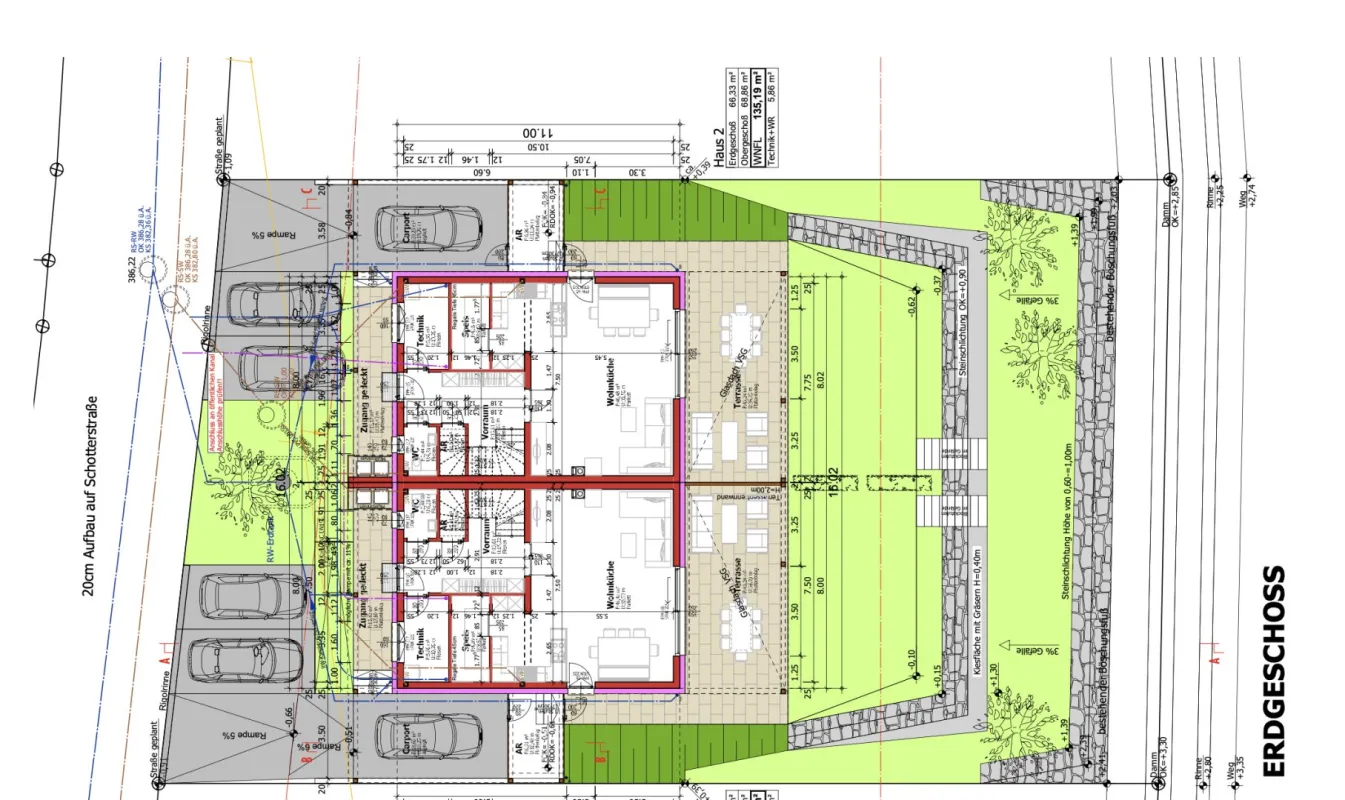
Beschreibung

Grundstück in idyllischer Lage – Wiesham/Pennewang - 888 m² Baugrund

Inmitten der sanften Hügellandschaft des Hausruckviertels befindet sich dieses attraktive Grundstück in Wiesham. Mit einer großzügigen Grundfläche von 888 m² bietet es die perfekte Grundlage für die Verwirklichung Ihres Wohntraums oder als nachhaltige Investition in Ihre Zukunft.

Inklusive Planung & Visualisierung

Besonders attraktiv: Für dieses Grundstück liegen bereits fertige Entwurfspläne sowie professionelle Visualisierungen vor. Diese können bis zur Einreichung an die Baubehörde übergeben werden – ein immenser Vorteil, der Zeit und Geld spart.
Diese Leistungen sind bereits im Kaufpreis inkludiert. So können Sie sofort mit der Umsetzung starten, ohne Verzögerung durch Planungsprozesse.

Lage & Umgebung

Das Grundstück liegt in einer ruhigen, ländlich geprägten Siedlungslage und überzeugt durch seine naturnahe Umgebung sowie die gute Erreichbarkeit zu den umliegenden Ortschaften wie Gunskirchen, Wels und Lambach. Die Region zeichnet sich durch hohe Lebensqualität, familienfreundliches Umfeld und eine intakte Nachbarschaft aus.

Grundstücksdetails

  • Grundfläche: 888 m²

  • Widmung: Bauland-Wohngebiet

  • Erschließung: Kanal, Wasser und Strom in der Straße bzw. am Grundstück (nicht im Kaufpreis enthalten)

  • Unverbaubarer südseitiger Ausblick

  • Form: Eben und rechteckig geschnitten – ideal für Einfamilienhaus oder Doppelhaus

Ihre Vorteile auf einen Blick

  • Ruhige, sonnige Lage in ländlicher Idylle

  • Gute Anbindung an regionale Zentren

  • Vielfältige Bebauungsmöglichkeiten

  • Familienfreundliche Nachbarschaft

Jetzt anfragen und Besichtigungstermin sichern!

Nutzen Sie die Chance auf dieses besondere Grundstück in einer der begehrtesten Wohngegenden im Bezirk Wels-Land. Ich freue mich auf Ihre Kontaktaufnahme!

Der Vermittler ist als Doppelmakler tätig.

In der Umgebung
Bus
< 1km
Bahnhof
< 4km
Schule
< 2km
Kindergarten
< 4km
Supermarkt
< 4km
Bäckerei
< 4km
Bank
< 2km
Bankomat
< 2km
Post
< 4km
Arzt
< 4km
Apotheke
< 5km
Quelle: OpenStreetMap / Entfernungsangaben Luftlinie

Anbieter kontaktieren

Letzte Änderung: 25.09.2025, 11:00:10 Uhr; Referenz-Nummer: 6867/234