Trend Logo

Einzigartige Gartenwohnung mit nur 2 Parteien

6800 Feldkirch / Vorarlberg
60 m2
Wohnfläche
3
Zimmer
€ 489.500,00
Kaufpreis

Beschreibung

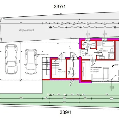
Diese einzigartige Gartenwohnung mit ca 140m2 großer Grünfläche in Feldkirch bietet Ihnen durch die nur zweit Parteien eine ruhige und private Atmosphäre.

 

Die Wohnung besteh aus:

  • Eingansbereich
  • Gäste WC
  • Badezimmer mit Dusche (Barrierefrei) und Badewanne
  •  Wohn & Essbereich
  • Küche
  • Zwei Schlafzimmer

 

Des Weiteren gehört ein Carport Unterstellplatz, ein Technikraum und ein Abstellraum zu der Wohnung dazu.

Die Umgebung rund um die Wohnung bietet eine perfekte Mischung aus Natur und urbanem Leben. Feldkirch ist eine charmante Stadt mit einer Vielzahl von Einkaufsmöglichkeiten, Restaurants und kulturellen Einrichtungen. Die Lage in Feldkirch ermöglicht es Ihnen, die Vorzüge der Stadt zu genießen und gleichzeitig die Ruhe im eigenen Garten zu erleben.

Anbieter kontaktieren

Letzte Änderung: 27.11.2025, 13:11:28 Uhr; Referenz-Nummer: 826