Trend Logo

Entwicklungsprojekt Grundstück Terminal Wels - direkt vom Eigentümer

4600 Wels / Oberösterreich
14.225 m2
Grundfläche

Beschreibung

Wir bauen nach Ihren Wünschen - Grundstück Terminal Wels

 

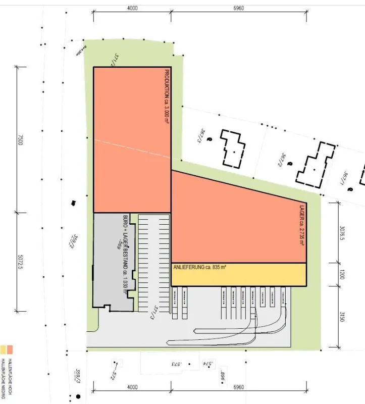
Die Liegenschaft verfügt über enormes Entwicklunspotential und  befindet sich in einem bevorzugten Gewerbegebiet von Oberösterreich - Terminal Wels.  Das Areal ist auf Grund der schnellen Anbindung an die Autobahn und der gegebenen Widmung " Industriegebiet" eine ideale Standortmöglichkeit für Gewerbe-und Industrieunternehmen.

 

Es ist ein multifunktionales Gewerbeobjekt mit Hallen und Büros auf der Liegenschaft geplant und wir können Ihre Mietfläche  - Stand alone oder integriert im Projekt - nach Ihren Wünschen ausrichten.

 

Standort: Wels, Terminalstraße 23

Grundfläche ges.: 14.225 m²

Fläche Gst.Nr. 371/3: 11.465 m²
Fläche Gst.Nr. 371/2: 2.760 m²

Widmung: Industriegebiet

Betriebszeiten: 24/7

 

Gerne stehen wir bei Fragen als auch für eine Besichtigung vor Ort zur Verfügung.

 

+++ Kein Vermittlungshonorar - direkt vom Eigentümer +++

Lagebeschreibung

Wels Terminal, schnelle Autobahnanbindung an die A25 und B1

In der Umgebung
Bus
< 1km
Autobahnanschluss
< 2km
Bahnhof
< 4km
Flughafen
< 2km
Bank
< 2km
Bankomat
< 2km
Post
< 2km
Polizei
< 2km
Arzt
< 3km
Apotheke
< 1km
Klinik
< 3km
Krankenhaus
< 3km
Schule
< 2km
Kindergarten
< 2km
Universität
< 4km
Supermarkt
< 1km
Bäckerei
< 2km
Einkaufszentrum
< 1km
Quelle: OpenStreetMap / Entfernungsangaben Luftlinie

Anbieter kontaktieren

Letzte Änderung: 26.11.2025, 12:19:45 Uhr; Referenz-Nummer: 161