Beschreibung
Moderne Bürofläche , mit ca. 300 m² , 10-20 separate Räume insgesamt möglich, optional 2 Kellerabteile mit je 10m² zusätzlich mietbar, ab sofort verfügbar! Pkw Stellpätze optional!
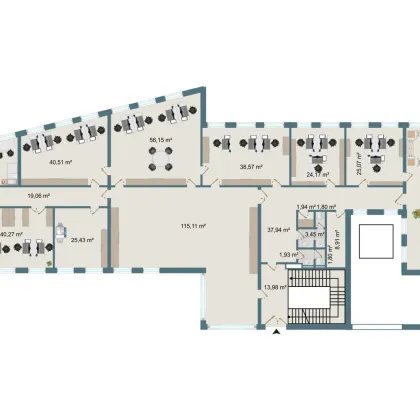
Insgesamt stehen 545m² Bürofläche/ Praxisfläche zur Verfügung. Ein Lift kann vom Eigentümer eingebaut werden ( Die Nettomiete würde sich dann auf 14 € pro m² erhöhen )
Hier gehts direkt zur 360 Grad online Tour: https://my.matterport.com/show/?m=PMtQgNxDNzt
Diese moderne Bürofläche wurde vor kurzem renoviert und befindet sich lagetechnisch direkt beim Einkaufszentrum Auhofcenter. Sämtliche Versorgungs und Einkaufsmöglichkeiten sind fußläufig in wenigen Minuten erreichbar. Die Busstationen 50A und 50B befinden sich in unmittelbarer Nähe. Die S-Bahn Station Hadersdorf erreichen Sie in 10 min (700m) zu Fuß. Es stehen weiters optional 5 Pkw Stellplätze direkt vor dem Bürogebäude zur Verfügung. Eine weitere Anmietung von Tiefgaragenplätzen direkt im Auhofcenter ist möglich. Das Büro erstrahlt in frisch ausgemalten und freundlichem Zustand .
Renovierung 2023:
- Neue Fußböden
- Neu ausgemalt
- Großzügige Fensterflächen
- Funktionale technische Einrichtung
- Spiegelrasterdeckeneinbauleuchten
Objektdaten:
- ca. 297m² Gesamtfläche
- 10 Räume ( bis zu 20 Räume möglich)
- Getrennte WC-Räume
- Abstellraum
Optional anmietbar:
- 5 PKW Stellplätze direkt vor dem Bürogebäude
- Stellplätze in der Tiefgarage im Haus
- 2 Kellerabteile jeweils ca. 10 m²
Öffentliche Anbindung:
- Busse 50A, 50 B, vor dem Haus
- Schnellbahnstation Hadersdorf: S50 in 10 Minuten zu Fuß ( 700 m)
Technische Ausstattung:
- EDV Verkabelung in Brüstungskanälen
- Stromversorgung in allen Räumen über Brüstungskanäle
- Mechanische Außenjalousien
Der Mietpreis € 10,-- pro m² exklusive 20 % USt.
- Betriebskosten a konto € 2,35 pro m² exkl 20% USt.
- zuzüglich Warmwasser, Heizungs a konto €1,30 pro m² exkl 20% USt.
- Elektro akonto: ca.€ 0,70 exkl 20% USt. pro m²
- Internet
- Mietdauer: bis 10 Jahre oder nach Vereinbarung möglich
Befristung 4-15 Jahre optionale Verlängerungsmöglichkeit gegeben
Wir stehen für Fragen und Besichtigungen gerne zur Verfügung und erwarten Ihre schriftliche Anfrage unter office@posch-immobilien.at
Hinweis gemäß Energieausweisvorlagegesetz: Ein Energieausweis wurde vom Eigentümer bzw. Verkäufer, nach unserer Aufklärung über die generell geltende Vorlagepflicht, sowie Aufforderung zu seiner Erstellung noch nicht vorgelegt. Daher gilt zumindest eine dem Alter und der Art des Gebäudes entsprechende Gesamtenergieeffizienz als vereinbart. Wir übernehmen keinerlei Gewähr oder Haftung für die tatsächliche Energieeffizienz der angebotenen Immobilie.
Der Vermittler ist als Doppelmakler tätig.
Pläne
Lagebeschreibung
+Auhofcenter, 1140 Wien, S50 Schnellbahnstation Hadersdorf 700m entfernt+
 
                                     
                             
                            