Trend Logo

GELEGENHEIT in Gamlitz - Großzügige Lagerfläche (auch teilbar) mit Parkplatz!

8462 Gamlitz / Steiermark
391,77 m2
Nutzfläche

Beschreibung

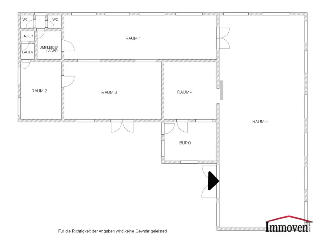
Die komplette Lagerfläche oder nur Teile davon mieten - alles ist möglich!
Die Räumlichkeiten (ca. 392 m²) einer ehemaligen Tischlerei eignen sich ideal für ein großes Lager. Je nach Bedarf kann die ganze Fläche oder nur Teilstücke angemietet werden (siehe Raumaufteilung).

Abstellplätze sind ausreichend am Grundstück vorhanden.

Wichtiger Hinweis:
Mietpreis = € 6,50/m² Netto
Die Befristung erfolgt nach Vereinbarung. Die Vergebührung für das Finanzamt richtet sich nach der Befristung.

Haben wir Ihr Interesse geweckt? Dann freuen wir uns auf Ihre Anfrage.

Lage und Infrastruktur:
Gamlitz ist eine Gemeinde in der Südsteiermark und bekannt für Wein, Kulinarik, Kultur und Natur. Die zentrale Lage in Gamlitz ermöglicht eine sehr gute Zufahrt und das Objekt ist über die A9 und die B69 einfach erreichbar.
----------------------------

Über weitere Informationen zu diesem bzw. ähnlichen Objekten aus unserem bestehenden Portfolio informieren wir Sie sehr gerne persönlich auf Anfrage unter:

Norbert Karner
+43 (0)664 160 30 61

n.karner@immovent.at

Im Falle einer erfolgreichen Vermittlung stellen wir 3 BMM zzgl. 20% USt als Provision in gesetzlicher Höhe in Rechnung. Die obigen Angaben über dieses Objekt erfolgen mit der Sorgfalt eines ordentlichen Immobilienmaklers und basieren auf den Angaben und Informationen des Eigentümers. Daher können wir keine Gewähr für die Richtigkeit der Angaben leisten.

Hinweis gemäß Energieausweisvorlagegesetz: Ein Energieausweis wurde vom Eigentümer bzw. Verkäufer, nach unserer Aufklärung über die generell geltende Vorlagepflicht, sowie Aufforderung zu seiner Erstellung noch nicht vorgelegt. Daher gilt zumindest eine dem Alter und der Art des Gebäudes entsprechende Gesamtenergieeffizienz als vereinbart. Wir übernehmen keinerlei Gewähr oder Haftung für die tatsächliche Energieeffizienz der angebotenen Immobilie.

In der Umgebung
Bus
< 1km
Bahnhof
< 3km
Arzt
< 1km
Apotheke
< 1km
Bank
< 1km
Bankomat
< 1km
Post
< 3km
Polizei
< 1km
Supermarkt
< 1km
Bäckerei
< 3km
Einkaufszentrum
< 2km
Schule
< 1km
Quelle: OpenStreetMap / Entfernungsangaben Luftlinie

Anbieter kontaktieren

Letzte Änderung: 20.11.2025, 09:13:46 Uhr; Referenz-Nummer: 98524