Trend Logo

GERSTHOF - Bauträger aufgepasst: Baubewilligtes Projekt (41 Wohnungen, 1 Büro, 1 Atelier und 17 Abstellplätze) in sehr guter Lage

1180 Wien
1.188 m2
Grundfläche
1.792,49 m2
Nutzfläche
€ 3.400.000,00
Kaufpreis

Beschreibung

DFi - Immobilientreuhand & Financial Consulting GmbH bietet nachfolgende Bauträgerliegenschaft zum sofortigen Ankauf an:

 

Interessante Bauträgerliegenschaft in guter Wohnlage in 1180 Wien

 

Die ggstl. Liegenschaft befindet sich im 18. Wiener Gemeindebezirk unweit des Orthopädischen Krankenhauses Gersthof.

 

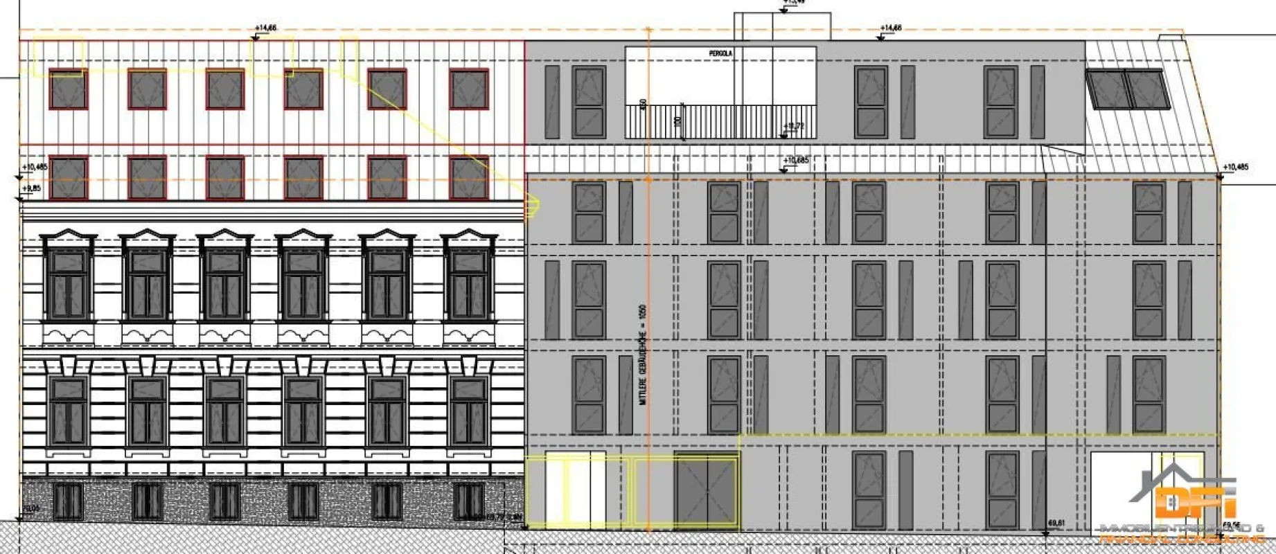
Es gibt bereits eine aufrechte Baubewilligung für die Schaffung von insgesamt 41 Wohneinheiten + 1 Büro + 1 Atelier mit einer Gesamtnutzfläche von rd. 1.792,49m².

Zusätzlich sind 17 PKW-Stellplätze bewilligt.

 

Die Lage der Liegenschaft lässt sich als sehr gut bezeichnen.

In näherer Umgebung findet man das Orthopädische Krankenhaus Gersthof, den Friedhof Hernals, den Postsportplatz und auch die Währinger Straße.

 

Die öffentliche Anbindung ist sehr gut. Sie finden sowohl die Straßenbahnlinien 42 und 9, als auch die Buslinien 10A und 42A in wenigen Gehminuten entfernt.

Auch die Schnellbahnstation Währinger Straße ist fußläufig erreichbar.

 

Besichtigungen sind ab sofort jederzeit möglich!

 

Kaufpreis: EUR 3.400.000,--

Proviison: 3 % des Kaufpreises zzgl. 20 % USt

 

 

Erfüllt diese Liegenschaft genau Ihre Anforderungen und Wünsche? - Dann zögern Sie nicht und kontaktieren Sie uns!

Herr Mag.(FH) Daniel Fichtenbauer, M.A., MRICS steht Ihnen für weitere Informationen und eine persönliche Besichtigung jederzeit gerne unter 0664/55 15 700 oder office@dfi.at zur Verfügung!

Wir freuen uns auf Sie!

 

Besuchen Sie uns auch auf Facebook unter www.facebook.com/dfi.co.at und drücken Sie auf "Gefällt mir"!

 

Der Immobilienmakler weist den Anbotsteller auf ein bestehendes wirtschaftliches Naheverhältnis zum Verläufer hin.

Das wirtschaftliche Naheverhältnis ergibt sich aus regelmäßiger geschäftlicher Verbindung. 

In der Umgebung
Bus
< 1km
U-Bahn
< 1km
Straßenbahn
< 1km
Bahnhof
< 1km
Autobahnanschluss
< 4km
Supermarkt
< 1km
Bäckerei
< 1km
Einkaufszentrum
< 2km
Arzt
< 1km
Apotheke
< 1km
Klinik
< 1km
Krankenhaus
< 2km
Schule
< 1km
Kindergarten
< 1km
Universität
< 2km
Höhere Schule
< 1km
Bankomat
< 1km
Bank
< 1km
Post
< 1km
Polizei
< 1km
Quelle: OpenStreetMap / Entfernungsangaben Luftlinie

Anbieter kontaktieren

Letzte Änderung: 19.02.2026, 09:21:21 Uhr; Referenz-Nummer: 718