Trend Logo

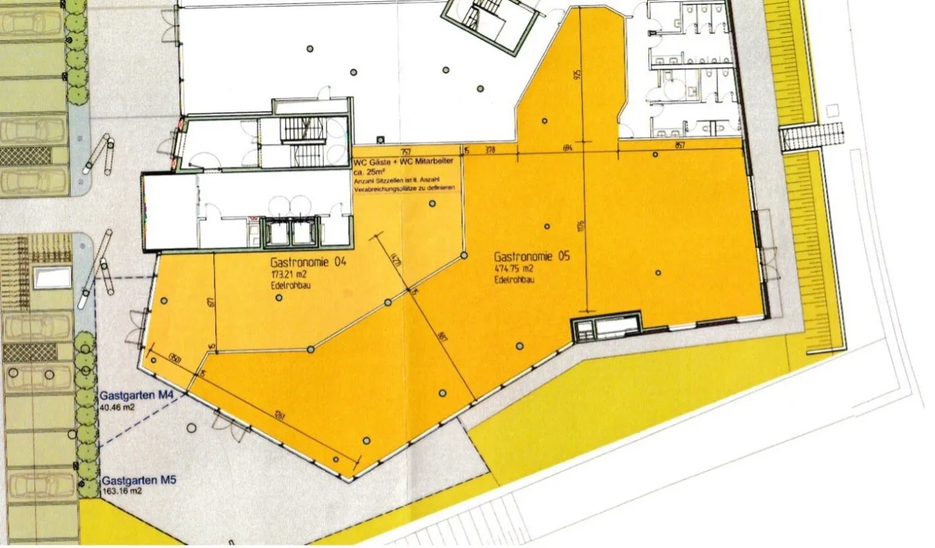
GROSSGASTRONOMIE/BETRIEBSFLÄCHE - erstes Objekt an der Zufahrt zum Industriezentrum NÖ Süd - 472 m²

2351 Wiener Neudorf / Niederösterreich
472 m2
Nutzfläche
€ 10.195,20
Nettomiete

Beschreibung

Der angegebene Preis von € 8.260.- versteht sich für die 472 m² Innenfläche mitsamt Gartenanteil (163 m²).

 

ACHTUNG WICHTIGE INFORMATION: GEMÄSS DEN VORGABEN UNSERER ANBIETER – ABGEBER WERDEN DETAILLIERTE ANGABEN ÜBER DIE INTERESSENTEN BENÖTIGT. IM FALLE IHRER ANFRAGE BITTEN WIR UM ANGABE VON: FIRMENNAME / NAME, ADRESSE, TELEFON, E-MAIL.

Auf ein wirtschaftliches Naheverhältnis zum Abgeber wird hingewiesen. Alle Informationen basieren auf Angaben des Abgebers und sind somit ohne Gewähr. Der Auftraggeber wurde von der Firma Gastrotel über die gesetzliche Verpflichtung zur Vorlage eines Energiesauweises aufgeklärt, ist dieser Aufforderung bis dato jedoch noch nicht nachgekommen.

Für Fragen bzw. zur Vereinbarung einer Besichtigung erreichen Sie

Frau Jutta SCHRÖDER: 0664 307 68 59  oder Herrn Christian HILSCHER: 0664 240 71 79    bzw. per Mail: office@gastrotel.at  

 

Wir weisen darauf hin, dass zwischen dem Vermittler und dem zu vermittelnden Dritten ein familiäres oder wirtschaftliches Naheverhältnis besteht.

Der Vermittler ist als Doppelmakler tätig.

Lagebeschreibung

Die Liegenschaft befindet sich direkt an der Autobahnabfahrt A2 - Wiener Neudorf (IZ NÖ SÜD). In unmittelbarer Nähe gibt es zahlreiche Repräsentanzen großer Firmen und viele Parkplätze. Das Objekt befindet sich im erweiterten Edelrohbau und erlaubt dem künftigen Mieter mit hoher Flexibilität den Innenausbau nach eigenen Vorstellungen zu gestalten.

In der Umgebung
Bus
< 1km
Bahnhof
< 2km
Autobahnanschluss
< 1km
Straßenbahn
< 4km
Kindergarten
< 2km
Schule
< 2km
Höhere Schule
< 3km
Arzt
< 1km
Apotheke
< 1km
Klinik
< 4km
Krankenhaus
< 3km
Supermarkt
< 1km
Bäckerei
< 2km
Einkaufszentrum
< 1km
Bank
< 1km
Bankomat
< 1km
Post
< 1km
Polizei
< 1km
Quelle: OpenStreetMap / Entfernungsangaben Luftlinie

Anbieter kontaktieren

Letzte Änderung: 29.10.2025, 17:45:08 Uhr; Referenz-Nummer: 25714