Trend Logo

Großzügige Werkstatt/Atelier usw. (auch teilbar) mit Parkplatz in Gamlitz!

8462 Gamlitz / Steiermark
391,77 m2
Nutzfläche

Beschreibung

Eine tolle Möglichkeit für Handwerker, Künstler oder all jene die viel Platz benötigen!
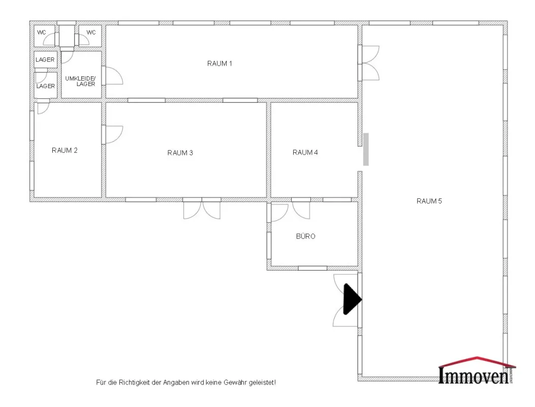
Die Räumlichkeiten (ca. 392 m²) einer ehemaligen Tischlerei bieten sich als Werkstatt geradezu an. Genauso können sich Künstler, Yogabetreibende oder jene, die einem handwerklichen Hobby nachgehen, angesprochen fühlen. Je nach Bedarf, ob für ein Atelier, einen Yogaraum oder eben für eine Werkstatt, können die Räumlichkeiten adaptiert werden.

Sie benötigen nicht so viel Platz? Kein Problem, dann mieten Sie nur Teilstücke an (siehe Raumaufteilung). Bei diesem Objekt sind fast keine Grenzen gesetzt.

Abstellplätze sind ausreichend am Grundstück vorhanden.

Wichtiger Hinweis:
Mietpreis = € 6,50/m² Netto
Die Befristung erfolgt nach Vereinbarung. Die Vergebührung für das Finanzamt richtet sich nach der Befristung.

Haben wir Ihr Interesse geweckt? Dann freuen wir uns auf Ihre Anfrage.

Lage und Infrastruktur:
Gamlitz ist eine Gemeinde in der Südsteiermark und bekannt für Wein, Kulinarik, Kultur und Natur. Die zentrale Lage in Gamlitz ermöglicht eine sehr gute Zufahrt und das Objekt ist über die A9 und die B69 einfach erreichbar.
----------------------------

Über weitere Informationen zu diesem bzw. ähnlichen Objekten aus unserem bestehenden Portfolio informieren wir Sie sehr gerne persönlich auf Anfrage unter:

Norbert Karner
+43 (0)664 160 30 61

n.karner@immovent.at

Im Falle einer erfolgreichen Vermittlung stellen wir 3 BMM zzgl. 20% USt als Provision in gesetzlicher Höhe in Rechnung. Die obigen Angaben über dieses Objekt erfolgen mit der Sorgfalt eines ordentlichen Immobilienmaklers und basieren auf den Angaben und Informationen des Eigentümers. Daher können wir keine Gewähr für die Richtigkeit der Angaben leisten.

Hinweis gemäß Energieausweisvorlagegesetz: Ein Energieausweis wurde vom Eigentümer bzw. Verkäufer, nach unserer Aufklärung über die generell geltende Vorlagepflicht, sowie Aufforderung zu seiner Erstellung noch nicht vorgelegt. Daher gilt zumindest eine dem Alter und der Art des Gebäudes entsprechende Gesamtenergieeffizienz als vereinbart. Wir übernehmen keinerlei Gewähr oder Haftung für die tatsächliche Energieeffizienz der angebotenen Immobilie.

In der Umgebung
Bus
< 1km
Bahnhof
< 3km
Arzt
< 1km
Apotheke
< 1km
Bank
< 1km
Bankomat
< 1km
Post
< 3km
Polizei
< 1km
Supermarkt
< 1km
Bäckerei
< 3km
Einkaufszentrum
< 2km
Schule
< 1km
Quelle: OpenStreetMap / Entfernungsangaben Luftlinie

Anbieter kontaktieren

Letzte Änderung: 20.11.2025, 09:11:36 Uhr; Referenz-Nummer: 98525