Trend Logo

Herrliche Wohnung mit Loggia in bester Lage – Willkommen in Rotheau!

3153 Rotheau / Niederösterreich
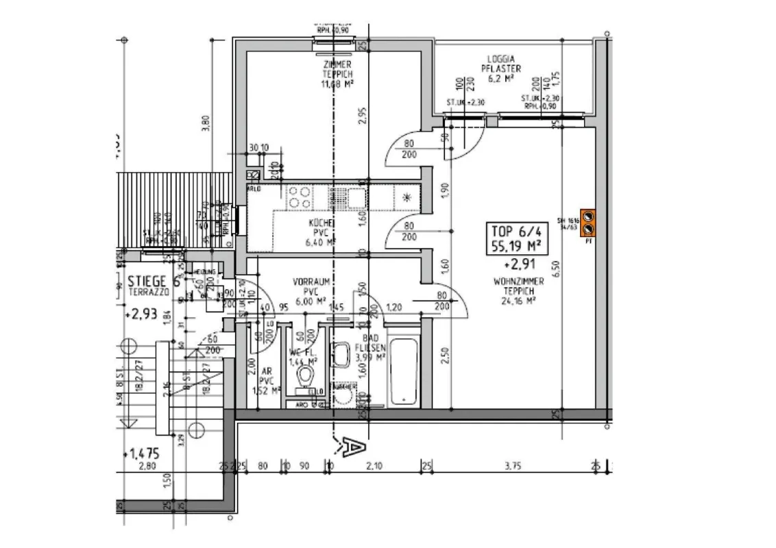
55,19 m2
Wohnfläche
2
Zimmer
€ 481,15
Bruttomiete

Beschreibung



Willkommen in Ihrem neuen Zuhause in Rotheau, Niederösterreich!

Diese charmante 55,19 m² große Wohnung bietet Ihnen alles, was Sie für ein angenehmes und komfortables Wohnen benötigen. Besonders hervorzuheben ist die großzügige Loggia mit ca. 6 m², die direkt an das Wohnzimmer grenzt. Hier können Sie in Ruhe entspannen und den Alltag hinter sich lassen.

Direkt neben dem Wohnzimmer befindet sich die separat angelegte Küche, die Ihnen viel Platz zum Kochen und Genießen bietet. Das Badezimmer ist mit einer Badewanne, einem Handwaschbecken und einem Waschmaschinenanschluss ausgestattet. Das separierte WC sowie der praktische Abstellraum befinden sich direkt am Eingang und bieten zusätzlichen Stauraum.

Ein Kellerabteil sowie ein Autoabstellplatz runden das Angebot dieser Wohnung perfekt ab und sorgen für noch mehr Komfort.

Die Wohnung überzeugt nicht nur durch ihre Ausstattung, sondern auch durch ihre zentrale Lage: Eine Bushaltestelle befindet sich in unmittelbarer Nähe, und auch Kindergarten, Schulen, Einkaufsmöglichkeiten, Bahnhof, Arzt, Apotheke und Bank sind schnell zu erreichen.

Die Wärmeversorgung erfolgt über Nahwärme, was für eine umweltfreundliche und kosteneffiziente Beheizung sorgt.

Befristung: unbefristet, 1 Jahr Kündigungsverzicht 3 Monate Kündigungsfrist

Bezug: 01.01.2026

Energiekennzahlen: Laut Energieausweis vom 08.04.2020 beträgt der Heizwärmebedarf 66,24 kWh/m²a Klasse C und der Gesamtenergieeffizienz-Faktor 1,84 Klasse D.

Der einmalige Finanzierungsbeitrag beträgt € 2.407,09 und die monatliche Miete beläuft sich auf € 481,15 inkl. BK und Ust.

Machen Sie den ersten Schritt und starten Sie bald Ihr neues Leben in Rotheau!


Hinweis für Mietinteressenten:
Wir sind vom Vermieter dieser Immobilie mit der Vermittlung eines Mietvertrages beauftragt. Deshalb ist es uns gemäß § 17 a Maklergesetz untersagt, mit Ihnen als Mietinteressent eine Provisionsvereinbarung zu schließen.

Das bedeutet für Sie:
Wir sind ausschließlich im Auftrag des Verfügungsberechtigten und nicht als Doppel­makler tätig. Sie gehen bezüglich dieser Immobilie und Ihrer Mietabsicht mit uns KEIN Vertragsver­hältnis ein und werden von uns diesbezüglich KEINE Rechnung erhalten.

Zwischen Vermieter und Makler besteht ein wirtschaftlich Naheverhältnis.

Der Immobilienmakler erklärt, dass er – entgegen dem in der Immobilienwirtschaft üblichen Geschäftsgebrauch des Doppelmaklers – einseitig nur für den Vermieter tätig ist.

In der Umgebung
Bus
1km
Bahnhof
2km
Bank
4km
Bankomat
4km
Post
4km
Polizei
4km
Supermarkt
3km
Bäckerei
4km
Schule
3km
Kindergarten
2km
Arzt
3km
Apotheke
4km
Quelle: OpenStreetMap / Entfernungsangaben Luftlinie

Anbieter kontaktieren

Letzte Änderung: 21.10.2025, 10:46:13 Uhr; Referenz-Nummer: 1916/3500