Trend Logo

INVEST - kleines Bauherrenmodell 2/3 Anteil - TAKE YOUR CHANCE ;-)

2524 Teesdorf / Niederösterreich
1.953 m2
Grundfläche
907 m2
Nutzfläche
€ 3.000.000,00
Kaufpreis

Beschreibung

 

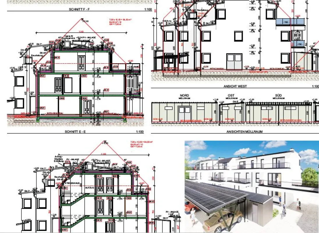
Erwerben Sie 2/3 Anteil an Neubauwohnungen zur späteren Vermietung oder einzelne Wohnungen im Wohnungseigentum zum späteren Verkauf. In der Gemeinde Teesdorf ist ein Wohngebäude mit Wohneinheiten zur Vermietung geplant. Ab Baustart ist mit einer Fertigstellung in ca. 18. Monaten. Gesucht werden ein Investor/ Investoren, die Anteile des Projekts erwerben. Insgesamt sind 907m2 Wohnnutzfläche bereits baubewillgt.

 

öffentliche Einrichtungen in der Gemeinde:

In der Gemeinde gibt es einen Kindergarten, eine Volksschule, eine Allgemeine Sonderschule und eine Neue Mittelschule

Verkehr:

Die Aspangbahn, die in den Jahren 1881/82 gebaut wurde, verläuft durch das Gemeindegebiet. Eine eigene Haltestelle erhielt Teesdorf erst 1887.  Buslinie 310 hält in Teesdorf.

Die Marktgemeinde Teesdorf bietet ein innovatives Carsharingprojekt an. Das Ziel ist es, einen Impuls für E-Mobilität zu geben sowie umweltfreundliche, saubere und wirtschaftliche Mobilität vorzuzeigen.

Für die Teesdorfer Bevölkerung ist es eine Möglichkeit einfach und kostengünstig Zugriff auf ein Elektroauto zu haben. Es bietet der Bevölkerung daher eine flexible und nachhaltige Mobilitätsmöglichkeit, sei es für einen Wochenendausflug, einen Tagestrip oder einfach für schnelle Erledigungen. Das E-Car Auto bietet eine kostengünstige Alternative zu einem Zweit- bzw. Drittauto. 

mit dem Auto:

- in Baden in15 min, 9,2 km

- in Wien 25 min, 29 km

 

Kurz erklärt: Das kleine Bauherrenmodell

Das Bauherrenmodell ist eine zivilrechtliche Gestaltungsform zur Ausnutzung von Steuervorteilen. Bei dieser Investition schließen Sie sich mit den anderen Investoren zu einer (i.d.R. vermögensverwaltenden) Personengesellschaft zusammen, mit dem Zweck eine Immobilie zu sanieren bzw. abzureißen und neu zu bauen um anschließend diese langfristig zu vermieten. Investieren Sie in eine oder mehrere Wohnungen bzw. erwerben ideelles Eigentum an Teilen des Gebäudes.

Das Konzept hierfür wird vom Anbieter zur Verfügung gestellt, von Planung über die Finanzierung bis hin zur Beauftragung der Gewerke. Sprich Sie wissen im Vorfeld, um welche Immobilie es sich handeln wird, wie hoch die voraussichtlichen Kosten sein werden, welche Förderungen angesucht werden und wie die Immobilie nach Fertigstellung vermietet wird.

Die anfallenden Aufgaben werden vom Anbieter abgewickelt, wobei Sie als „kleiner Bauherr“ nur ein geringes Mitspracherecht haben.

Beim kleinen Bauherrenmodell tragen Sie ein geringeres Risiko als beim großen Bauherrenmodell. Sie benötigen auch weniger Eigenkapital für den Mindestanteil, dafür ist in der Regel die steuerliche Abschreibung geringer und es fallen höhere Nebenkosten im Vergleich zum großen Bauherrenmodell an.

  • Senkung der Einkommensteuer: Mit dieser Investition erreichen Sie in den ersten Jahren eine Senkung der Einkommensteuerlast.
  • Pensionsvorsorge: Diese Investition ist nach Fertigstellung, durch die laufenden Mieteinnahmen, zur Schließung der Pensionslücke geeignet.
  • Vermögensaufbau: Bei beliebten Wohngegenden bzw. starken Zuzugsgebieten können Sie mit einer deutlichen Wertsteigerung rechnen.
  • Regelmäßiges Zusatzeinkommen: Erzielen Sie laufende indexierte Mieteinnahmen für ein arbeitsfreies Zusatzeinkommen.
  • Kapitalsicherung: Umschichtung von Geldwert in Sachwert

 

  • Mit dem kleinen Bauherrenmodell erzielen Sie Einkünfte aus Vermietung und Verpachtung.
  • Bei dieser Investition ergeben sich erhebliche Steuervorteile für Sie, gem. § 28 Abs 2 und 3 EStG, da die anfallenden Werbungskosten sofort abzugsfähig sind und die Basis für die Berechnung Ihrer  Einkommensteuer senken.
  • Sie können die Baukosten beschleunigt abschreiben: Instandsetzungsaufwendungen - AfA 10 Jahre oder Sofortabsetzung, sowie begünstigte Herstellungsaufwendungen (Sanierungsaufwendungen AfA 15 Jahre) Kosten für die Projektkonzeption können bis maximal 25% der Instandsetzungs- und Herstellungskosten beschleunigt abgeschrieben werden.
  • Sie als „kleiner Bauherr“ sind zum Vorsteuerabzug berechtigt.

 

Investitionsziele

  • Senkung der Einkommensteuer: Mit dieser Investition erreichen Sie in den ersten Jahren eine Senkung der Einkommensteuerlast.
  • Pensionsvorsorge: Diese Investition ist nach Fertigstellung, durch die laufenden Mieteinnahmen, zur Schließung der Pensionslücke geeignet.
  • Vermögensaufbau: Bei beliebten Wohngegenden bzw. starken Zuzugsgebieten können Sie mit einer deutlichen Wertsteigerung rechnen.
  • Regelmäßiges Zusatzeinkommen: Erzielen Sie laufende indexierte Mieteinnahmen für ein arbeitsfreies Zusatzeinkommen.
  • Kapitalsicherung: Umschichtung von Geldwert in Sachwert

 

Gut zu wissen:

  • Übernahme des Bauherrenrisikos
  • Steuerlicher Totalgewinn vor bzw. mit Verkauf notwendig, da sonst Nachversteuerung
  • Langfristige Investition
  • Verkürzte Abschreibung auf 15 Jahre
  • Inanspruchnahme von Förderungen

 

Einkunftsart und Steuern:

  • Mit dem kleinen Bauherrenmodell erzielen Sie Einkünfte aus Vermietung und Verpachtung.
  • Bei dieser Investition ergeben sich erhebliche Steuervorteile für Sie, gem. § 28 Abs 2 und 3 EStG, da die anfallenden Werbungskosten sofort abzugsfähig sind und die Basis für die Berechnung Ihrer  Einkommensteuer senken.
  • Sie können die Baukosten beschleunigt abschreiben: Instandsetzungsaufwendungen - AfA 10 Jahre oder Sofortabsetzung, sowie begünstigte Herstellungsaufwendungen (Sanierungsaufwendungen AfA 15 Jahre) Kosten für die Projektkonzeption können bis maximal 25% der Instandsetzungs- und Herstellungskosten beschleunigt abgeschrieben werden.
  • Sie als „kleiner Bauherr“ sind zum Vorsteuerabzug berechtigt.

 

Um sämtliche Unterlagen zu erhalten, bitten wir Ihren Namen und Ihre Anschrift, e-mail Adresse Telefonnummer bekanntzugeben. Fordern Sie das Exposé und alle relevanten Dokumente an !

 

In der Umgebung
Bus
< 1km
Bahnhof
< 1km
Autobahnanschluss
< 4km
Flughafen
< 3km
Kindergarten
< 1km
Schule
< 1km
Bank
< 1km
Bankomat
< 1km
Post
< 2km
Polizei
< 2km
Arzt
< 1km
Apotheke
< 1km
Klinik
< 5km
Supermarkt
< 1km
Bäckerei
< 1km
Quelle: OpenStreetMap / Entfernungsangaben Luftlinie

Anbieter kontaktieren

Letzte Änderung: 07.04.2025, 21:17:44 Uhr; Referenz-Nummer: 5648/121