Trend Logo

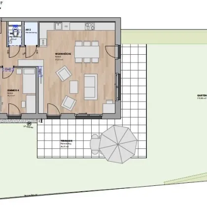
Luxuriöse 5-Zimmer Garten-Wohnung - Top 2.07

3002 Purkersdorf / Niederösterreich
121,32 m2
Wohnfläche
5
Zimmer
€ 849.600,00
Kaufpreis

Beschreibung

In der zentrumsnahen Wintergasse 39 im beliebten Purkersdorf, errichten wir eine moderne Wohnhausanlage. Diese fügt sich harmonisch in den Hang ein, besteht aus 4 Wohnhäusern mit insgesamt 48 Wohnungen (2-, 3-, 4- und 5-Zimmer Wohnungen), 74 KFZ-Tiefgaragenplätzen, sowie 8 Stellplätzen für Motorräder.

Fertigstellung: spätestens Ende April 2027

PROVISIONSFREI vom Bauträger

Das Team von Geiger Immobilien freut sich auf Ihre Anfrage!

Lagebeschreibung

Purkersdorf liegt an der westlichen Grenze zu Wien, direkt am Wienerwald. Zur Bahn, welche Sie in circa 20 Minuten zum Westbahnhof nach Wien bringt, sind es nur 9 Gehminuten. Eine Vielzahl an Schulen (VS, BG, BRG, VHS, Mittelschule, Musikschule), Fachärzte, Supermärkte sowie nette Lokale befinden sich ebenfalls in Gehweite. Das Auhofcenter mit zahlreichen Geschäften ist mit dem Auto in 10 Minuten erreichbar.

In der Umgebung
Bus
< 1km
Bahnhof
< 1km
Autobahnanschluss
< 3km
Arzt
< 1km
Apotheke
< 1km
Supermarkt
< 1km
Bäckerei
< 1km
Einkaufszentrum
< 3km
Schule
< 1km
Kindergarten
< 1km
Universität
< 5km
Bankomat
< 1km
Bank
< 1km
Post
< 1km
Polizei
< 1km
Quelle: OpenStreetMap / Entfernungsangaben Luftlinie

Anbieter kontaktieren

Weitere Objekte in diesem Projekt

Letzte Änderung: 08.01.2026, 11:19:43 Uhr; Referenz-Nummer: 5421