Trend Logo

Mühlwasser I PREISREDUZIERTES baubewilligtes PROJEKT I SOFORT umsetzbar!

1220 Wien
497,72 m2
Grundfläche
497,72 m2
Nutzfläche
€ 649.000,00
Kaufpreis

Beschreibung

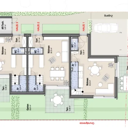
Angebot für Bauträger und Baufirmen! Angeboten wird ein Reihenhausprojekt nahe dem Mühlwasser mit 3 Familienwohneinheiten auf je 3 Geschoßebenen mit Eigengärten, Terrassen und PKW-Stellflächen.

Lage: 
In wenigen Minuten zur Klinik Donaustadt, Nahe dem Oberen Mühlwasser (8 Gehminuten), sehr gute Nahversorgung für den täglichen Bedarf, Schulen und vielfältige Sportmöglichkeiten fußläufig erreichbar. 
Anbindung Öffis: Bus 93a < 100m 

Das Reihenhaus-Projekt nach § 70b der BO. f. Wien! Der Kaufpreis versteht sich als genehmigtes Bauprojekt. 

Bitte die Projektunterlagen anfordern! Gerne steht Ihnen Herr Alexander Ringsmuth, für weitere Fragen bzw. flexibel gestaltbare Besichtigungstermine unter 0676 842 055 100 zur Verfügung. 

www.ringsmuth-immobilien.at

Irrtum und Änderungen vorbehalten!

Wir weisen darauf hin, dass zwischen dem Vermittler und dem zu vermittelnden Dritten ein familiäres oder wirtschaftliches Naheverhältnis besteht.

Der Vermittler ist als Doppelmakler tätig.

Lagebeschreibung

Oberes Mühlwasser, Klinik Donaustadt; Erholungsgebiet Lobau, Nationalpark Donau-Auen; Donauinsel

In der Umgebung
Bus
< 1km
U-Bahn
< 2km
Straßenbahn
< 1km
Bahnhof
< 2km
Autobahnanschluss
< 3km
Supermarkt
< 1km
Bäckerei
< 1km
Einkaufszentrum
< 4km
Arzt
< 1km
Apotheke
< 1km
Klinik
< 2km
Krankenhaus
< 2km
Schule
< 1km
Kindergarten
< 1km
Universität
< 3km
Höhere Schule
< 3km
Bankomat
< 1km
Bank
< 1km
Post
< 1km
Polizei
< 1km
Quelle: OpenStreetMap / Entfernungsangaben Luftlinie

Anbieter kontaktieren

Letzte Änderung: 24.10.2025, 08:16:17 Uhr; Referenz-Nummer: 14275