Beschreibung
Wohnbauprojekt "K5"- geplante Fertigstellung Ende 2025
Nahe dem Mühlwasser in einer ruhigen Seitengasse, befindet sich das Neubauprojekt "K5" mit insgesamt 30 Eigentumswohnungen in Bau. Die Einheiten verfügen über 2 bis 4 Zimmer und Wohnflächen zwischen ca. 38 und 101 m² – jeweils mit Balkon, Terrasse oder Eigengarten.
Das Projekt ist klimaaktiv-zertifiziert und setzt auf eine nachhaltige Bauweise mit langfristigem Fokus: Energieversorgung über eine Wasser-Wasser-Wärmepumpe, Photovoltaikanlage am Dach sowie moderne Dämmung sorgen für niedrige Betriebskosten und ein angenehmes Raumklima. Alle Wohnungen sind barrierefrei zugänglich, ein Lift ist vorhanden. In der Tiefgarage stehen 17 Stellplätze mit Option einer E‑Ladevorbereitung zur Verfügung.
Durch Kombination aus Grünlage, guter Anbindung und der zukunftsorientierten Bauweise sind die Wohnungen sowohl für Eigennutzer als auch für Anleger ideal geeignet.
Im Überblick:
- Wohneinheiten: 30 Wohnungen verteilt auf zwei Stiegen mit 2 bis 4 Zimmern
- Wohnflächen: ca. 38 m² bis 101 m²
- Geplante Fertigstellung: Dezember 2025
- Außenflächen: Balkon, Terrasse oder Eigengarten je Einheit
- Barrierefreier Zugang zu allen Wohnungen
- Tiefgarage mit 17 Stellplätzen
- Fahrradraum / Kinderwagenabstellraum / Eigenes Kellerabteil
Technische Ausstattung & Komfort:
- Wasser-Wasser-Wärmepumpe in Splitausführung (Kühlung & Heizung)
- Photovoltaik/Solaranlage zur Reduktion von Energie- und Betriebskosten
- Fußbodenheizung mit Raumthermostaten
- Fußbodentemperierung in sämtlichen Wohnbereichen
- Elektrische Handtuchheizkörper in den Bädern
- Split-Klimageräte in den Dachgeschosswohnungen
- Hochwertige Innenausstattung (Eichenparkett, Feinsteinfliesen u.v.m.)
- 3‑fach verglaste Holz‑Alu‑Fenster und Sonnenschutz in allen Wohnungen (Rollladen, Raffstores, Markisoletten)
- Kleinkinderspielplatz auf Eigengrund
In die Zukunft Investieren: Immobilien gelten als wertbeständige und sichere Anlageform. Alle Wohnungen und Stellplätze können auch als Vorsorge- / Anlagewohnung mit Umsatzsteuerausweisung (weitere Vermietung verpflichtend!) erworben werden!
Sichern Sie sich Ihre neue Vorsorgewohnung - gerne beraten wir Sie dazu!
Gerne steht Ihnen Herr Benjamin Bornschein für weitere Fragen bzw. flexibel gestaltbare Besichtigungstermine unter 0664 4255 264 zur Verfügung.
www.ringsmuth-immobilien.at
Irrtum und Änderungen vorbehalten!
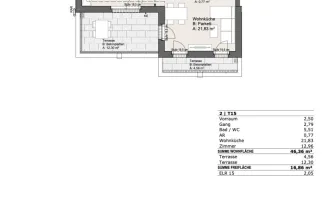
Top 01 | 2 Zimmer + Hobbyraum | ca. 84,42 m² WNFL + ca. 158,38 m² Freifläche
Diese großzügige 2-Zimmer-Wohnung erstreckt sich über zwei Ebenen. Die Wohnfläche beträgt ca. 84 m², dazu kommen eine ca. 47 m² große Terrasse sowie ein Eigengarten mit ca. 111 m². Im Untergeschoß befindet sich ein eigener Hobbyraum mit ca. 35,48 m²
Raumaufteilung Erdgeschoß:
- Wohnküche: ca. 25,33 m²
- Zimmer: ca. 11,90 m²
- Bad: ca. 6,79 m²
- WC separat: ca. 1,53 m²
- Vorraum: ca. 3,39 m²
Untergeschoss:
- Hobbyraum: ca. 35,48 m²
Freiflächen:
- Terrasse: ca. 46,80 m²
- Eigengarten: ca. 111,58 m²
Wohnbauprojekt "K5"- geplante Fertigstellung Ende 2025
Nahe dem Mühlwasser in einer ruhigen Seitengasse, entsteht das Neubauprojekt "K5" mit insgesamt 30 Eigentumswohnungen. Die Einheiten verfügen über 2 bis 4 Zimmer und Wohnflächen zwischen ca. 38 und 101 m² – jeweils mit Balkon, Terrasse oder Eigengarten.
Das Projekt ist klimaaktiv-zertifiziert und setzt auf eine nachhaltige Bauweise mit langfristigem Fokus: Energieversorgung über eine Wasser-Wasser-Wärmepumpe, Photovoltaikanlage am Dach sowie moderne Dämmung sorgen für niedrige Betriebskosten und ein angenehmes Raumklima. Alle Wohnungen sind barrierefrei zugänglich, ein Lift ist vorhanden. In der Tiefgarage stehen 17 Stellplätze zur Verfügung.
Technische Ausstattung & Komfort:
- Wasser-Wasser-Wärmepumpe in Splitausführung (Kühlung & Heizung)
- Photovoltaik/Solaranlage zur Reduktion von Energie- und Betriebskosten
- Fußbodenheizung mit Raumthermostaten
- Fußbodentemperierung in sämtlichen Wohnbereichen
- Elektrische Handtuchheizkörper in den Bädern
- Split-Klimageräte in den Dachgeschosswohnungen
- Hochwertige Innenausstattung (Eichenparkett, Feinsteinfliesen u.v.m.)
- 3‑fach verglaste Holz‑Alu‑Fenster und Sonnenschutz in allen Wohnungen (Rollladen, Raffstores, Markisoletten)
- Kleinkinderspielplatz auf Eigengrund
Kaufpreis:
Der Verkaufspreis beläuft sich auf Euro 413.560.-
Diese Wohnung kann auch als Vorsorge- / Anlagewohnung mit Umsatzsteuerausweisung (weitere Vermietung verpflichtend!) erworben werden:
Anlegerpreis: Euro 372.577.- (zzgl. 20% Ust).
Alle Preise verstehen sich ohne Kücheneinrichtung und Tiefgaragenstellplatz (á € 28.800.- bzw. 25.350.- Netto + USt), in schlüsselfertiger Ausführung!
In die Zukunft Investieren: Immobilien gelten als wertbeständige und sichere Anlageform.
Sichern Sie sich Ihre neue Vorsorgewohnung - gerne beraten wir Sie dazu!
Gerne steht Ihnen Herr Benjamin Bornschein für weitere Fragen bzw. flexibel gestaltbare Besichtigungstermine unter 0664 4255 264 zur Verfügung.
www.ringsmuth-immobilien.at
Irrtum und Änderungen vorbehalten!
Der Vermittler ist als Doppelmakler tätig.
Pläne
Lagebeschreibung
Das Projekt liegt in einer ruhigen Seitengasse, umgeben von weitläufigen Grünflächen und nur ca. 10min (Fußweg) vom Mühlwasser entfernt. Die Donau-Auen, der Nationalpark Lobau und weitere Freizeitangebote sind ebenfalls schnell fußläufig oder mit dem Fahrrad erreichbar. Die Buslinien 93A und 98A liegen fußläufig, die U2 Station "Aspernstraße" ist über Anschluss erreichbar. Öffentliche Verkehrsmittel: -Buslinien 93A, N91, 98A, 97A, 92A, -U2-Station erreichbar mit dem Bus oder Straßenbahn, Einkaufsmöglichkeit: -Billa: ca. 250 m entfernt
Anbieter kontaktieren
Weitere Objekte in diesem Projekt

Nähe Mühlwasser I Klimaaktiv-zertifiziert I Tiefgarage I Wärmepumpe I Fußbodenheizung & Kühlung I PV-Anlage
Wohnfläche
Zimmer
Kaufpreis

Nähe Mühlwasser I Klimaaktiv-zertifiziert I Tiefgarage I Wärmepumpe I Fußbodenheizung & Kühlung I PV-Anlage
Wohnfläche
Zimmer
Kaufpreis

Nähe Mühlwasser I Klimaaktiv-zertifiziert I Tiefgarage I Wärmepumpe I Fußbodenheizung & Kühlung I PV-Anlage
Wohnfläche
Zimmer
Kaufpreis

Nähe Mühlwasser I Klimaaktiv-zertifiziert I Tiefgarage I Wärmepumpe I Fußbodenheizung & Kühlung I PV-Anlage
Wohnfläche
Zimmer
Kaufpreis