Beschreibung
Im grünen Oberlaa entstehen heuer
10 Eigentumswohnungen in ecologische Holzriegelbauweise
mit
Balkonen, Terrasse, Eigengarten,
eigenen Tiefgaragen mit 7 PKW Stellplätzen.
Voraussichtliche Fertigstellung Sommer 2026
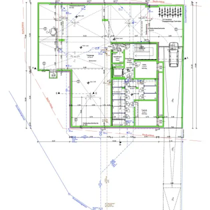
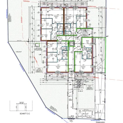
Großzügige Grundrisse (jetzige Verkaufspläne dienen als Entwurf, m² können minimal abweichen)
Hochwertige Ausstattung
Tiefgaragen Parkplätze (nicht im KP inbegriffen)
Überzeugen Sie sich selbst und bestimmen noch mit!
Nahversorgung:
Einkaufen
Bildung
Gastronomie
Gesundheit und
Freizeit zu Fuß erreichbar
Nähere Informationen gerne auf Anfrage!
Änderungen, Tippfehler vorbehalten.
Haben Sie Fragen zu Finanzierung?
Gerne können Sie unseren kostenlose online Kreditrechner benutzen: https://www.immacon.at/kreditrechner/
Sollten Sie persönliche Beratung bevorzugen, gerne stellen wir für Sie unseren Finanzierungsexperten zur Verfügung.
Ist das Ihr erstes Eigenheim?
Dann sind Sie von GB Eintragungsgebühr (von Wert bis 500.000) eventuell befreit?!
Befreiung von der Grundbuch-Eintragungsgebühr bei Erwerb von Wohnraum:
Am 20. März 2024 wurde im Nationalrat die temporäre Befreiung von den Gebühren für die Eintragung von Eigentumsrecht und Pfandrecht im Grundbuch bei Erwerb von Wohnraum beschlossen.
https://www.bmj.gv.at/themen/Fokusthemen/Befreiung-von-der-Grundbuch-Eintragungsgeb%C3%BChr-bei-Erwerb-von-Wohnraum.html
Pläne
Lagebeschreibung
Auf eine ruhigen grünen Straße gelegen, mit Parks Umgeben und gleichzeitig 5 Minuten zu Fuß von Therme Oberlaa entfernt, 7 Minuten von U-Bahn Station Oberlaa, befindet sich das neue Projekt - 10 Eigentumswohnungen mit Balkonen/Terrasse und Eigengartenbereichen!
Anbieter kontaktieren
Weitere Objekte in diesem Projekt

Neubau Eigentumswohnungen in der Oberlaa - U-Bahn & Therme nähe - Erstbezug, Provisionsfrei, mit eigenen Tiefgaragen Stellplätzen, Eigengarten oder Terrassen/ Balkonen
Wohnfläche
Kaufpreis

Neubau Eigentumswohnungen in der Oberlaa - U-Bahn & Therme nähe - Erstbezug, Provisionsfrei, mit eigenen Tiefgaragen Stellplätzen, Eigengarten oder Terrassen/ Balkonen
Wohnfläche
Kaufpreis

Neubau Eigentumswohnungen in der Oberlaa - U-Bahn & Therme nähe - Erstbezug, Provisionsfrei, mit eigenen Tiefgaragen Stellplätzen, Eigengarten oder Terrassen/ Balkonen
Wohnfläche
Kaufpreis

Neubau Eigentumswohnungen in der Oberlaa - U-Bahn & Therme nähe - Erstbezug, Provisionsfrei, mit eigenen Tiefgaragen Stellplätzen, Eigengarten oder Terrassen/ Balkonen
Wohnfläche
Kaufpreis