Trend Logo

Pinggau: Sehr schöne Mietwohnung nähe Zentrum!

8243 Pinggau / Steiermark
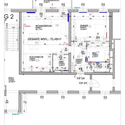
70,48 m2
Wohnfläche
2
Zimmer
€ 776,06
Bruttomiete

Beschreibung

Diese komplett barrierefreie 2 Zimmer Wohnung hat einen perfekten Grundriss und befindet sich im 2. Stock mit Lift. Die helle Wohnung ist mit einer neuwertigen Einbauküche (inklusive E-Geräte), mit Parkettböden und geschmackvollen Fliesenböden ausgestattet. Heizung: Fernwärme. Die Wohnung teilt sich wie folgt auf: Vorraum, Abstellraum, WC mit Handwaschbecken, helles Badezimmer mit Wanne/Dusche, 1 Schlafzimmer, loftartiger Wohn-Essbereich mit offener Küche und Zugang zum Balkon (ca. 9 m²). Ein Parkplatz inkludiert. Bruttomonatsmiete: EUR 776,06 inkl. Betriebskosten EUR 169,86 und USt, exkl. Strom und Heizung. Mietdauer: 5 Jahre mit Verlängerungsmöglichkeit / 3 BMM Kaution (EUR 2.328,18)


Weitere Infos und BS Termin Fr. White Tel. 0676 925 03 99

Der Immobilienmakler erklärt, dass er – entgegen dem in der Immobilienwirtschaft üblichen Geschäftsgebrauch des Doppelmaklers – einseitig nur für den Vermieter tätig ist.

In der Umgebung
Bus
< 1km
Autobahnanschluss
< 4km
Bahnhof
< 1km
Supermarkt
< 1km
Bäckerei
< 5km
Bank
< 1km
Bankomat
< 1km
Post
< 1km
Schule
< 1km
Kindergarten
< 5km
Arzt
< 1km
Apotheke
< 1km
Klinik
< 1km
Quelle: OpenStreetMap / Entfernungsangaben Luftlinie

Anbieter kontaktieren

Letzte Änderung: 09.12.2025, 11:37:30 Uhr; Referenz-Nummer: 255555760