Trend Logo

#SQ - LAUFHAUS/BORDELL - BREITENFURTER STRASSE - 1120 WIEN

1120 Wien
137,48 m2
Wohnfläche
8
Zimmer
€ 2.165,31
Nettomiete

Beschreibung

Objektbeschreibung

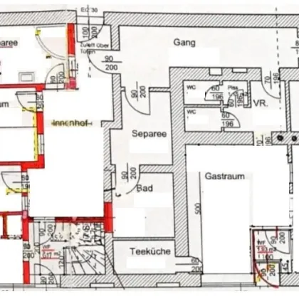
Zur Miete gelangt ein 137m² großes Etablissement, welches sich durch eine gute Aufteilung mit mehreren Separees auszeichnet. Diese Immobilie bietet vielfältige Nutzungsmöglichkeiten und besticht durch ihre diskrete Atmosphäre.

Zusätzlich besteht die Möglichkeit, eine kleine Mietwohnung im selben Gebäude anzumieten.

Räume:

  • 4 Einzelzimmer
  • Gastraum
  • Sauna
  • Bar
  • Abstellraum

Kostenübersicht

  • Monatliche Kosten (brutto): €2.598,37 (inkl. Betriebskosten und USt)
  • Kaution: €9.000,--
  • Provision: 3 Bruttomonatsmieten + 20% USt

Lage & Infrastruktur

Die Immobilie befindet sich in einer begehrten Lage mit einer ausgezeichneten Infrastruktur. In direkter Umgebung befinden sich zahlreiche Geschäfte des täglichen Bedarfs sowie vielfältige Gastronomiebetriebe. Die Anbindung an den öffentlichen Nahverkehr ist hervorragend:

  • Buslinien
  • Straßenbahnen
  • U-Bahn

Kontakt & Weitere Informationen

Diskretion wird bei uns großgeschrieben! Weitere Informationen erhalten Sie gerne auf Anfrage.

Hinweis gemäß Energieausweisvorlagegesetz: Ein Energieausweis wurde vom Eigentümer bzw. Verkäufer, nach unserer Aufklärung über die generell geltende Vorlagepflicht, sowie Aufforderung zu seiner Erstellung noch nicht vorgelegt. Daher gilt zumindest eine dem Alter und der Art des Gebäudes entsprechende Gesamtenergieeffizienz als vereinbart. Wir übernehmen keinerlei Gewähr oder Haftung für die tatsächliche Energieeffizienz der angebotenen Immobilie.

Wir weisen darauf hin, dass zwischen dem Vermittler und dem zu vermittelnden Dritten ein familiäres oder wirtschaftliches Naheverhältnis besteht.

Der Vermittler ist als Doppelmakler tätig.

Lagebeschreibung

Breitenfurterstraße, 1120 Wien

In der Umgebung
Bus
1km
U-Bahn
1km
Straßenbahn
1km
Bahnhof
1km
Autobahnanschluss
1km
Arzt
1km
Apotheke
1km
Klinik
2km
Krankenhaus
2km
Supermarkt
1km
Bäckerei
1km
Einkaufszentrum
2km
Schule
1km
Kindergarten
1km
Universität
3km
Höhere Schule
3km
Bankomat
1km
Bank
1km
Post
1km
Polizei
1km
Quelle: OpenStreetMap / Entfernungsangaben Luftlinie

Anbieter kontaktieren

Letzte Änderung: 25.11.2024, 00:01:03 Uhr; Referenz-Nummer: 19787