Trend Logo

Top 01, 119 m² Gartenwohnung, Mils bei Hall

6068 Mils / Tirol
119,18 m2
Wohnfläche
3
Zimmer
€ 1.290.000,00
Kaufpreis

Beschreibung

VILLA DIANA in Mils: exklusives Wohnprojekt mit 6 barrierefreien Wohnungen in Ruhelage nahe dem Dorfkern. Südwest-Ausrichtung, hochwertige Ausstattung, viel Privatsphäre und zwei Garagenplätze pro Einheit.

 

Die VILLA DIANA besteht aus zwei Gebäudeteilen, die sich wie Flügel auf dem Grundstück erheben, so dass jede Wohnung über größtmögliche Privatsphäre verfügt. 

  • Grundstück in absoluter Ruhelage mit herrlicher Aussicht, trotzdem verkehrsgünstig gelegen
  • perfekte Süd-Westausrichtung der Wohnungen
  • großzügiges offenes Wohnen, lichtdurchflutet und barrierefrei
  • gemütliche Außenflächen mit viel Privatsphäre
  • hochwertige geschmackvolle Materialwahl und Ausstattung
  • individuelle Planung abweichend von der Grundausstattung möglich
  • Sicherheit und zeitgemäße technische Standards wie versperrte Tiefgarage, Personenlift, energieeffiziente Heizung, Photovoltaikanlage, Wärme- Schalldämmung, Barrierefreiheit vom Keller bis zum Dach, einbruchhemmende Türen, Holz/Alufenster, Videosprechanlage, usw.
  • für jede Wohnung sind zwei Garagenparkplätze reserviert zum Preis von je Euro 35.000,-

 

Das Wohnbauprojekt wurde für Personen konzipiert, die eine barrierefreie Wohnung mit allem Komfort und Sicherheit in bester Ruhelage suchen! 

Rufen Sie uns an und sichern Sie sich Ihren Wohntraum in diesem exklusiven Wohnbauprojekt!

VILLA DIANA in Mils: exklusives Wohnprojekt mit 6 barrierefreien Wohnungen in Ruhelage nahe dem Dorfkern. Südwest-Ausrichtung, hochwertige Ausstattung, viel Privatsphäre und zwei Garagenplätze pro Einheit.

 

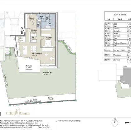
TOP 01 – Gartenparadies

Naturfläche mit Ambitionen: Die Gartenwohnung Top 01 mit ca. 119 m² Wohnfläche befindet sich im östlichen Gebäudeflügel B, sie liegt auf gleichem Niveau wie die östliche Bebauung und die Zufahrtsstraße. Von der Garage aus und vom Stiegenhaus ist sie über einen Halbstock zu Fuß erreichbar und mit Hilfe des Personenliftes ist sie barrierefrei. Der Höhenunterschied von etwa 1,5 Metern zum westlichen Garten von der Top 02 wird durch eine Böschung ausgeglichen.

 

Umsichtig und herrlich: Die umsichtige Planung sieht einen offenen, nach Süden orientierten Wohnraum vor, dem die Terrasse und der über 200 m² große, herrliche Garten vorgelagert sind. Die Küche mit Fenster, Kochinsel und Speis ist optimal positioniert. Wirtschaftsraum und Garderobe finden zentral im Eingangsbereich Platz.

Das große Hauptschlafzimmer liegt auf der Ostseite und verwöhnt seine künftigen Bewohner mit Morgensonne. Der separate Sanitärbereich verfügt ebenfalls über ein Fenster und kann zu einer kleinen Wellnessoase ausgebaut werden.

Das zweite durch seine nördliche Ausrichtung etwas kühlere Zimmer mit eigener Sanitäreinrichtung und natürlicher Belüftung könnte ein Fitnessraum, Büro oder Gästezimmer werden – ganz nach dem Geschmack der künftigen Bewohner.

Der voll besonnte Garten ist nicht unterkellert, daher besteht die Möglichkeit, den Garten individuell zu bepflanzen bzw. zu gestalten

In der Umgebung
Bus
1km
Autobahnanschluss
2km
Bahnhof
3km
Arzt
1km
Apotheke
1km
Klinik
2km
Krankenhaus
2km
Schule
1km
Kindergarten
1km
Universität
2km
Supermarkt
2km
Bäckerei
2km
Bank
1km
Bankomat
1km
Post
1km
Polizei
3km
Quelle: OpenStreetMap / Entfernungsangaben Luftlinie

Anbieter kontaktieren

Weitere Objekte in diesem Projekt

Letzte Änderung: 24.10.2025, 14:56:25 Uhr; Referenz-Nummer: 386