Trend Logo

UNBEFRISTET - Geräumiges und schönes Eckgeschäftslokal mit sehr guter Infrastruktur! Keine Gastronomie!

1140 Wien
367 m2
Nutzfläche
€ 6.666,67
Nettomiete

Beschreibung

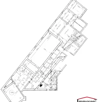
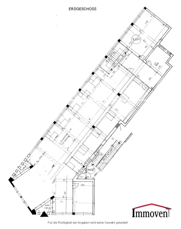
Ecklokal mit große Auslagen - große Lagerflächen - toller Standort!
Diese Gewerbefläche bietet eine Gesamtnutzfläche von ca. 625 m², wovon ca. 367 m² im Erdgeschoss als Verkaufsfläche und ca. 258 m² als Lagerfläche im Kellergeschoss zur Verfügung stehen.

Das Erdgeschoss mit seinen großen Auslagenflächen eignet sich hervorragend für den den Lebensmittelhandel oder Einzelhandel wie ein Modegeschäft, Sportgeschäft usw.

Es ist quasi für alle Branchen  - OHNE GASTRONOMIE - offen.

WICHTIGER HINWEIS: 
- Die monatliche Gesamtbelastung von € 6.666,67 ist inkl. BK, jedoch exkl. USt > Endpreis € 8.000,00
- Einmalige Zahlung als Ablösesumme in Höhe von € 60.000,00.
- Beziehbar nach Vereinbarung.

Überzeugen Sie sich selbst und vereinbaren Sie mit uns einen Besichtigungstermin.

Lage und Infrastruktur:
Direkt an der Hütteldorfer Straße, zwischen den Bäumen der Allee, bietet dieses Objekt alle Vorzüge der städtischen Infrastruktur von Penzing (14. Bezirk). Schnell gelangt man mit den Öffis ins Zentrum. Geschäfte des täglichen Bedarfs befinden sich quasi um die Ecke. 

Öffentliche Anbindungen:
- Straßenbahnen: 49
- Autobus: 10 A, 12 A
- S-Bahn - Station "Breitensee"
- U-Bahn: U3 - Station "Hütteldorfer Straße"
_ _ _ _ _ _ _ _ _ _ _ _ _ _ _ 

Über weitere Informationen zu diesem bzw. ähnlichen Objekten aus unserem bestehenden Wohnungsportfolio informieren wir Sie sehr gerne persönlich auf Anfrage unter:

Mag. Hannes Dobnikar
+43 (0)664 344 73 73
h.dobnikar@immovent.at

Im Falle einer erfolgreichen Vermittlung stellen wir 2 BMM zzgl. 20 % USt als Provision in gesetzlicher Höhe in Rechnung.

Die obigen Angaben über dieses Objekt erfolgen mit der Sorgfalt eines ordentlichen Immobilienmaklers und basieren auf den Angaben und Informationen des Eigentümers. Daher können wir keine Gewähr für die Richtigkeit der Angaben leisten.

Hinweis gemäß Energieausweisvorlagegesetz: Ein Energieausweis wurde vom Eigentümer bzw. Verkäufer, nach unserer Aufklärung über die generell geltende Vorlagepflicht, sowie Aufforderung zu seiner Erstellung noch nicht vorgelegt. Daher gilt zumindest eine dem Alter und der Art des Gebäudes entsprechende Gesamtenergieeffizienz als vereinbart. Wir übernehmen keinerlei Gewähr oder Haftung für die tatsächliche Energieeffizienz der angebotenen Immobilie.

In der Umgebung
Bus
1km
U-Bahn
1km
Straßenbahn
1km
Bahnhof
1km
Autobahnanschluss
5km
Arzt
1km
Apotheke
1km
Klinik
2km
Krankenhaus
2km
Supermarkt
1km
Bäckerei
1km
Einkaufszentrum
1km
Schule
1km
Kindergarten
1km
Universität
1km
Höhere Schule
1km
Bankomat
1km
Bank
1km
Post
1km
Polizei
1km
Quelle: OpenStreetMap / Entfernungsangaben Luftlinie

Anbieter kontaktieren

Letzte Änderung: 22.10.2025, 12:21:28 Uhr; Referenz-Nummer: 98615