Trend Logo

3-Zimmer-Neubau mit Loggia direkt bei der Donau

1220 Wien
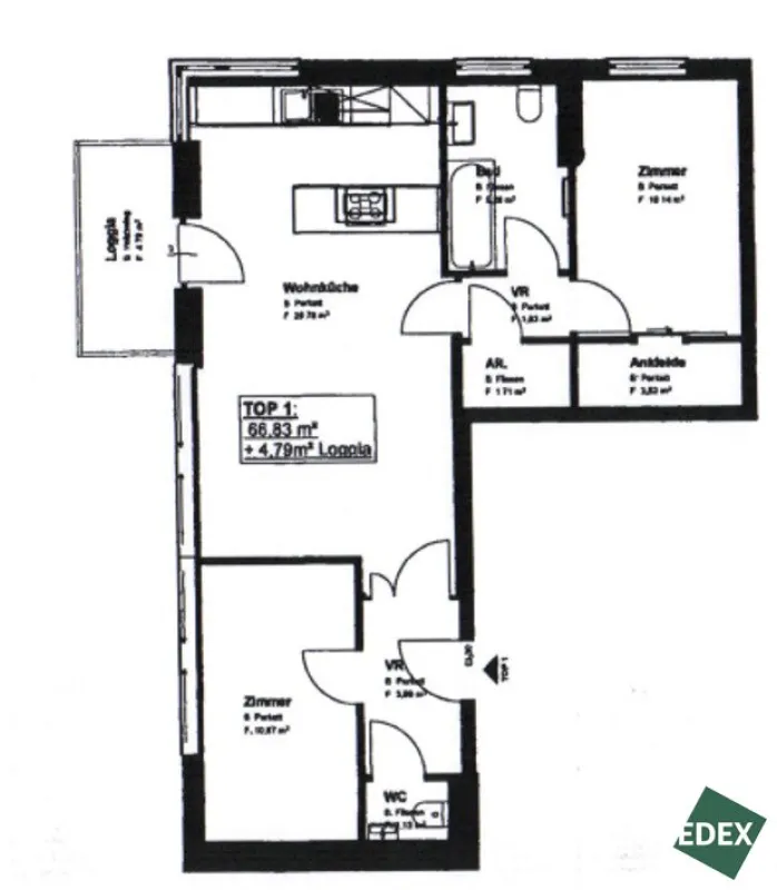
66,83 m2
Wohnfläche
3
Zimmer
€ 1.299,00
Bruttomiete

Beschreibung

Die Wohnung ist derzeit noch bewohnt, wird unmöbliert vermietet und steht ab dem 15.11. zum Bezug bereit.

Highlights:

  • Direkt an der Donau
  • Moderne Ausstattung
  • Optimale Aufteilung
  • Loggia

Objektbeschreibung

Zur Vermietung gelangt eine 3-Zimmer-Wohnung in ruhiger Wohnlage.
Die Wohnung befindet sich im 1. Liftstock (Stiege 6) und verfügt über einen Vorraum, ein separates WC, ein Badezimmer mit Badewanne und Waschbecken, einen Abstellraum, eine Ankleide, eine großzügige Wohnküche inkl. Geräten sowie zwei Schlafzimmer.

Von der Wohnküche aus gelangt man direkt auf die Loggia (ca. 4,79 m²).

Die Wohnräume sind mit Parkettböden, die Nassräume mit Fliesen ausgestattet.

Im Haus befindet sich eine Tiefgarage, in der Stellplätze angemietet werden können.

Die Wohnung steht ab dem 15.11.2025 zur Verfügung und wird auf 5 Jahre befristet vermietet.

Ausstattung

  • Einbauküche Geräten
  • Parkettböden
  • Sicherheitstüren
  • Badewanne
  • Loggia
  • Abstellraum
  • Tiefgarage (Stellplätze können angemietet werden)

Lage und Infrastruktur:

Die Wohnung liegt direkt an der Neuen Donau, mit Blick auf die Wiener Innenstadt und in unmittelbarer Nähe zur UNO City, dem DC Tower und internationalen Unternehmen. Die U1-Station Donauinsel befindet sich direkt vor der Tür – in nur 10 Minuten ist man in der Wiener Innenstadt. Auch der Flughafen Schwechat und das Donauzentrum sind schnell erreichbar.

Kindergärten, Schulen (auch bilingual) und ein vielfältiges Angebot an Nahversorgung, Gastronomie und Ärzten befinden sich in Gehdistanz. Die Donauinsel lädt direkt vor der Haustür zum Baden, Laufen und Radfahren ein – ideal für Freizeit, Sport und Erholung.

Der Immobilienmakler erklärt, dass er – entgegen dem in der Immobilienwirtschaft üblichen Geschäftsgebrauch des Doppelmaklers – einseitig nur für den Vermieter tätig ist.

In der Umgebung
Bus
1km
U-Bahn
2km
Straßenbahn
2km
Bahnhof
2km
Autobahnanschluss
1km
Supermarkt
1km
Bäckerei
1km
Einkaufszentrum
2km
Arzt
1km
Apotheke
1km
Klinik
2km
Krankenhaus
4km
Schule
1km
Kindergarten
1km
Universität
2km
Höhere Schule
4km
Bankomat
1km
Bank
1km
Post
1km
Polizei
1km
Quelle: OpenStreetMap / Entfernungsangaben Luftlinie

Anbieter kontaktieren

Letzte Änderung: 21.10.2025, 11:23:12 Uhr; Referenz-Nummer: 25049