Trend Logo

Effizient und zentral gelegen - Kleinbüro im IZ-NÖ Süd - 4. OG

2351 Wiener Neudorf / Niederösterreich
3
Zimmer
€ 1.093,63
Nettomiete

Beschreibung

Moderne Büroflächen im IZ-NÖ Süd - Starten Sie hier Ihr Business!

Das moderne Büro- und Lagerobjekt befindet sich in einem der bedeutendsten Wirtschaftsballungszentren im Süden von Wien- dem IZ-NÖ Süd (Industriezentrum Niederösterreich Süd). Das großzügige Betriebsareal entlang der Triester Straße ist von weitem gut sichtbar und ermöglicht damit auch Ihrem neuen Unternehmensstandort eine gute Visability.

Derzeit stehen die folgenden Büroflächen zur Verfügung, wobei jeweils der vermieterseitige Umbau/Anpassung an Raumkonfiguration des zukünftigen Mieters möglich ist:

> 3.OG: ca. 268,05 m² -> verfügbar
> 2.OG: ca. 409,45 m² -> verfügbar
> 3.OG: ca. 192,09 m² -> verfügbar
> 3.OG: ca. 192,19 m² -> verfügbar
> 4.OG: ca. 268,46 m² -> verfügbar
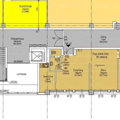
> 4.OG: ca. 87,49m² -> verfügbar

 

Raumplanung - effizient und flexibel:
Alle Büroflächen können vermieterseits flexibel an die gewünschte Raumkonfiguration des Mieters angepasst werden - 1, 2, oder 4-Personen-Zimmer bzw. Großraumbüros - alles möglich. Ein neuer Fußbodenbelag wird nach Absprache zwischen Mieter und Vermieter verlegt.


> Werbefläche auf Fassade zur B17 im Ausmaß ab 6 x 4 m² ab € 3.500,00 p.a. zzgl. 20% Ust können zusätzlich angemietet werden.

 

Verkehrsgünstige LAGE:
Das moderne Bürohaus mit Lagerhallen wird über mehrere Ausfahrten der A2/Südautobahn (z.B. Mödling, Wr. Neudorf) bzw. die B17 erschlossen.
Die Anbindung durch öffentliche Verkehrsmittel ist insbesondere durch die Badner Bahn und die Autobuslinien 263, 360, 361 gegeben.

Der Diskonter Hofer und ein Wirtshaus befinden sich direkt gegenüber, der Supermarkt Billa ist in Gehweite.


FACTS:

  • Nettomiete Büroflächen: € 10,50/m² p.M.
  • Netto-Betriebskosten-Akonto inkl. Heizung und Wasser: € 2,00/m² p.M.
  • Kaution: 3-6 BMM
  • Provision: 3 BMM zzgl. 20% Ust.
  • Befristeter Mietvertrag mit Kündigungsverzicht

Alle Preise verstehen sich zzgl. 20% Umsatzsteuer.

Vereinbaren Sie einen Besichtigungstermin:
Mag. Alexandra Wagner, MSc
+43 664 601 05 165
www.anobis.at

Wir weisen darauf hin, dass zwischen dem Vermittler und dem zu vermittelnden Dritten ein familiäres oder wirtschaftliches Naheverhältnis besteht.

Der Vermittler ist als Doppelmakler tätig.

Lagebeschreibung

Industriezentrum Niederösterreich Süd, B 17

In der Umgebung
Bus
< 1km
Bahnhof
< 1km
Straßenbahn
< 4km
Autobahnanschluss
< 2km
Arzt
< 1km
Apotheke
< 1km
Klinik
< 3km
Krankenhaus
< 2km
Kindergarten
< 1km
Schule
< 2km
Höhere Schule
< 2km
Supermarkt
< 1km
Bäckerei
< 2km
Einkaufszentrum
< 1km
Bank
< 2km
Bankomat
< 2km
Post
< 1km
Polizei
< 1km
Quelle: OpenStreetMap / Entfernungsangaben Luftlinie

Anbieter kontaktieren

Letzte Änderung: 30.01.2026, 08:40:52 Uhr; Referenz-Nummer: 3853