Trend Logo

FernBlick 3: 4-Zimmer-Gartenwohnung mit Südterrasse in Perwang am Grabensee!

5166 Perwang am Grabensee / Oberösterreich
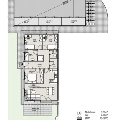
89,9 m2
Wohnfläche
4
Zimmer
€ 491.500,00
Kaufpreis

Beschreibung

- Haus mit nur drei Einheiten
- PV-Anlage (5 kWp Leistung)
- stilvolle Sanitärausstattung vom Markenhersteller
- Fußbodenheizung mit Einzelraumregelung
- jede Wohnung mit Garten- oder Dachterrasse
- hochwertige Parkettböden
- 2 Carports pro Wohnung
- u.v.m.

 

LAGE

Das Bauvorhaben befindet sich am Randbereich von Perwang, im Ortsteil Oberröd. Perwang am Grabensee ist eine Gemeinde in Oberösterreich im Bezirk Braunau am Inn in Innviertel mit ca. 1005 Einwohnern. Der Ort liegt nur 1,5 Kilometer von Grabensee entfernt wo sich ein Bade- und Campingplatz befindet. Arzt, Kindergarten, Schule, Bank, Dorfladen, Fleischer und Friseur liegen im Umkreis von ca. 2 Kilometern. Neben der guten individuellen Erreichbarkeit des Standortes mit privatem Verkehrsmittel sind auch öffentliche Verkehrsmittel im Ort vorhanden. In einer zauberhaften Landschaft mit zahlreichen Rad und Wanderwege entsteht das neue, einzigartige Projekt "FernBlick 3" und ist Ausdruck höchster Lebens- und Wohnqualität. Die Stadt Salzburg ist in ca. 30 Autominuten erreichbar.

In der Umgebung
Bus
1km
Kindergarten
1km
Schule
1km
Bank
1km
Bankomat
1km
Post
3km
Supermarkt
4km
Bäckerei
3km
Arzt
2km
Klinik
5km
Quelle: OpenStreetMap / Entfernungsangaben Luftlinie

Anbieter kontaktieren

Letzte Änderung: 29.07.2025, 16:54:06 Uhr; Referenz-Nummer: 4045