Trend Logo

Hochwertige Mietwohnung mit großer Sonnenterrasse!

5143 Feldkirchen bei Mattighofen / Oberösterreich
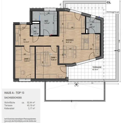
92,44 m2
Wohnfläche
3.5
Zimmer
€ 1.420,79
Bruttomiete

Beschreibung

Betreten Sie Ihr neues Reich!

Hier spiegeln sich die durchdachte Raumplanung als auch der hochwertige Baustandard in jeder Ecke wider.
Der sonnenhelle Wohnraum birgt zahlreiche Gestaltungsmöglichkeiten, dieser wird durch eine großzügig angelegte Sonnenterrasse erweitert.
Badezimmer und WC sind separat vom Vorraum aus begehbar und beeindrucken durch moderne Architektur.
Zwei angrenzende Schlafzimmer runden das Gesamtbild der Wohnung förmlich ab.

Die Gesamtnutzfläche inkl. Terrasse beträgt ca. 135,80m².

1 Parkplatz in der Tiefgarage und eine maßgeschneitere Wohnküche sind im Mietpreis bereits inkludiert.

*** Finden Sie ab sofort unsere Immobilien auch auf der Maklerplattform www.alleimmobilien.at ***

 

 

Der Immobilienmakler erklärt, dass er – entgegen dem in der Immobilienwirtschaft üblichen Geschäftsgebrauch des Doppelmaklers – einseitig nur für den Vermieter tätig ist.

Lagebeschreibung

Die Wohnung ist in einem modernen Wohnhaus in Feldkirchen bei Mattighofen zu finden. Feldkirchen bei Mattighofen liegt im oberen Innviertel und ist eine kleine, ländlich gelegene Gemeinde. Schulen und Kindergärten sind in nur wenigen Gehminuten zu erreichen. In der kleinen Ortschaft gibt es außerdem eine Bäckerei, in der man kleiner Einkäufe erledigen kann. Die nächsten Einkaufsmöglichen finden sich in Gundertshausen, sowie in Mattighofen – beide sind nur wenige Autominuten entfernt. Auch die Freizeitgestaltung fällt einem hier nicht schwer, schöne Wanderwege und traumhafte Seen, die zu diversen Aktivitäten einladen, liegen in nächster Nähe. (Höllerer See, Holzöster See, Ibmer Moor)

Anbieter kontaktieren

Letzte Änderung: 20.01.2026, 11:04:09 Uhr; Referenz-Nummer: 15811