Beschreibung
Die Gemeinde Sankt Marein im Mürztal liegt in der wunderschönen Region Hochsteiermark und gehört zum Bezirk Bruck-Mürzzuschlag. Inmitten der herrlichen Naturlandschaft die Sankt Marein umgibt, werden bis voraussichtlich Frühjahr 2026 freifinanzierte Reihenhäuser mit einer Wohnfläche von 89m² bzw. 107m² errichtet.
Schönes 4-Zimmer-Reihenhaus mit großen Terrassen
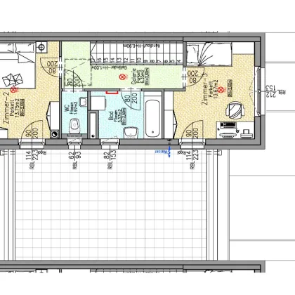
Man betritt das ost-westseitig ausgerichtete Reihenhaus im Erdgeschoss über einen zentral positionierten Vorraum, von dem man in die einladende Wohnküche und weiter in ein Zimmer mit Ausgang auf die Terrasse mit angrenzenden Garten gelangt. Ebenfalls wird vom Vorraum ein WC, der Technikraum und der Aufgang ins Obergeschoß erschlossen. Über die einläufige Stiege erreicht man das Obergeschoss, wo ebenfalls von einer zentralen Galerie zwei weitere Zimmer, ein Tageslicht-Bad mit Badewanne und ein getrennt begehbares WC mit Fenster erreicht werden. Die großzügige Dachterrasse ist von beiden Zimmern im Obergeschoß aus begehbar.
Zu jedem Reihenhaus gehören ein Geräteschrank auf der Terrasse im Erdgeschoss sowie zwei Autoabstellplätze im Freien und ein kleiner Müllplatz direkt vor dem Haus.
Das Reihenhaus wird entweder zum "Sofortkauf" oder im Modell „Miete mit Kaufoption nach 5 Jahren“ angeboten!
Pläne
Lagebeschreibung
Diese attraktive Reihenhausanlage liegt in der ruhigen Sölsnitzstraße in Sankt Marein im Mürztal, umgeben von der malerischen Natur der Steiermark. Die Lage bietet eine hervorragende Infrastruktur: Ein Arzt, eine Apotheke, ein Supermarkt sowie eine Bank und ein Geldautomat sind in unmittelbarer Nähe. Die gute Anbindung an öffentliche Verkehrsmittel, einschließlich Bus und Bahnhof, sowie der Autobahnanschluss machen diese Gegend besonders lebenswert.
Anbieter kontaktieren
Weitere Objekte in diesem Projekt

Finde deinen neuen Lebensplatz in der Hochsteiermark
Wohnfläche
Zimmer
Bruttomiete

Modern und nachhaltig wohnen in St. Marein
Wohnfläche
Zimmer
Kaufpreis

Schönes Eckreihenhaus mit großen Garten und Dachterrasse
Wohnfläche
Zimmer
Kaufpreis

Erstbezugsreihenhaus mit Garten und Dachterrasse
Wohnfläche
Zimmer
Kaufpreis