Trend Logo

Modernes Neubau-Penthouse am Kutschkermarkt – Erdwärme, Fußbodenheizung & großzügige Dachterrasse! Garagenstellplatz

1180 Wien
89,93 m2
Wohnfläche
3
Zimmer
€ 895.000,00
Kaufpreis

Beschreibung

Exklusive Dachgeschosswohnung mit großer Dachterrasse am Kutschkermarkt

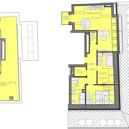
Diese hochwertig ausgestattete 3-Zimmer-Dachgeschosswohnung in einem modernen Neubau bietet ein einzigartiges Wohngefühl in begehrter Lage. Mit einer großzügigen Wohnfläche von ca. 90 m², einer eigenen Dachterrasse mit rund 36 m² sowie einer zusätzlichen kleinen Terrasse direkt an der Wohnküche, verbindet diese Immobilie stilvolles Design mit urbanem Komfort.

Highlights der Wohnung:

  • Erstbezug mit durchdachtem Grundriss und hochwertiger Ausstattung
  • Wohnfläche ca. 90 m² mit optimaler Raumaufteilung
  • Großzügige Dachterrasse mit ca. 36 m² sowie zusätzliche kleine Terrasse mit ca. 1,7 m²
  • Offener Wohn-Essbereich mit hochwertigem Eichenparkett
  • Fußbodenheizung mit energieeffizienter Erdwärmeheizung
  • Elektrische Außenjalousien und dreifach verglaste Fenster
  • Klimaanlage im Dachgeschoss für angenehmes Raumklima zu jeder Jahreszeit
  • Badezimmer mit Badewanne, Dusche, Feinsteinzeug-Fliesen und hochwertigem Waschtisch
  • Separates WC und zusätzlicher Abstellraum
  • LED-Deckenspots für stimmungsvolle Beleuchtung
  • Einlagerungsraum mit ca. 21 m² zur alleinigen Nutzung im Keller/Tiefgarage
  • Lift im Haus für barrierefreien Zugang
  • Optionaler Tiefgaragenstellplatz verfügbar

Raumaufteilung:

  • Vorraum
  • Wohnküche mit Zugang zur kleinen Terrasse
  • Zwei Zimmer
  • Badezimmer mit Dusche und Badewanne
  • Separates WC
  • Abstellraum
  • Zugang zur eigenen Dachterrasse über das Stiegenhaus

Lage:
Diese exklusive Dachgeschosswohnung befindet sich in unmittelbarer Nähe des Kutschkermarkts, einem der beliebtesten Märkte Wiens, mit vielfältigen Einkaufsmöglichkeiten, Restaurants und Cafés. Die Anbindung an den öffentlichen Verkehr ist ideal, mit der U6-Station Volksoper sowie den Straßenbahnlinien 40, 41 und 42 in fußläufiger Distanz. Der Schubertpark und der Türkenschanzpark bieten zusätzliche Erholungsmöglichkeiten in der Nähe.

Diese Immobilie vereint modernes Wohnen mit urbanem Lebensgefühl in einer der gefragtesten Lagen Wiens. Gerne stehen wir für weitere Informationen oder eine Besichtigung zur Verfügung.

Ein Garagenplatz in der hauseigenen Tiefgarage (straßenseitiger Zugang) kann um € 30.000,- erworben werden. 

Der Vermittler ist als Doppelmakler tätig.

Lagebeschreibung

Top-Lage in Währing – Urbanes Flair trifft auf entspanntes Wohnen Diese exklusive Dachgeschosswohnung befindet sich in einer der begehrtesten Wohngegenden Wiens, nur wenige Schritte vom charmanten Kutschkermarkt entfernt. Hier vereinen sich urbaner Lifestyle, perfekte Infrastruktur und entspannte Naherholung. Beste Anbindung & kurze Wege: U6-Station Volksoper in nur 10 Minuten zu Fuß erreichbar Straßenbahnen 40, 41, 42 sowie Schnellbahn S45 sorgen für optimale Anbindung In wenigen Minuten in die Innenstadt oder ins Grüne Kulinarische Vielfalt & Nahversorgung: Der Kutschkermarkt bietet täglich frische Waren, Feinkost und gemütliche Marktlokale Supermärkte, Boutiquen und Geschäfte des täglichen Bedarfs in unmittelbarer Umgebung Vielfältige Restaurants, Szenelokale und traditionelle Wiener Beisln direkt ums Eck Freizeit & Erholung: Schubertpark – die grüne Oase für einen entspannten Spaziergang Türkenschanzpark mit großzügigen Wiesen, Teichen und Sportmöglichkeiten Zahlreiche Fitnessstudios, Yoga-Studios und Sporteinrichtungen in der Umgebung Diese perfekte Mischung aus urbaner Lebendigkeit und hoher Wohnqualität macht die Lage dieser Immobilie besonders attraktiv.

In der Umgebung
Bus
< 1km
U-Bahn
< 1km
Straßenbahn
< 1km
Bahnhof
< 1km
Autobahnanschluss
< 3km
Supermarkt
< 1km
Bäckerei
< 1km
Einkaufszentrum
< 1km
Arzt
< 1km
Apotheke
< 1km
Klinik
< 1km
Krankenhaus
< 1km
Schule
< 1km
Kindergarten
< 1km
Universität
< 1km
Höhere Schule
< 1km
Bankomat
< 1km
Bank
< 1km
Post
< 1km
Polizei
< 1km
Quelle: OpenStreetMap / Entfernungsangaben Luftlinie

Anbieter kontaktieren

Letzte Änderung: 07.01.2026, 12:31:17 Uhr; Referenz-Nummer: 7633/235