Trend Logo

Ordination/Büro/Kanzlei mitten in St. Pölten - barrierefrei

3100 St. Pölten / Niederösterreich
10
Zimmer
209 m2
Nutzfläche

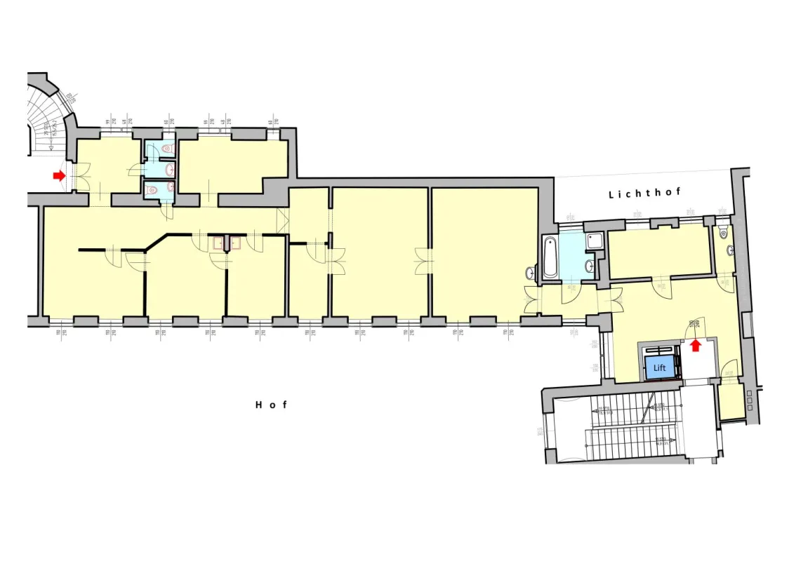
Beschreibung

Ideal für Arztpraxis oder Kanzlei durch 2 getrennte Eingänge (1 Stiegenhaus mit Lift, 1 Stiegenhaus ohne Lift). Barrierefreier Zugang!
Diese bisher als Arztpraxis verwendeten Räumlichkeiten bieten vielfältige Gestaltungsmöglichkeiten für bis zu 10 Räume.

Lage & Infrastruktur:
Die Bahnhofsnähe bietet eine hervorragende überregionale Anbindung. Der Hauptbahnhof ist nur ein paar Gehminuten entfernt.
Auch lokal ist man bestens angebunden: Vom Bahnhofsvorplatz erreicht man alle Teile St. Pöltens bequem mit dem Bus und kann so auf das eigene Auto verzichten. Rettungsfahrzeuge können über die Fußgängerzone zufahren. Für die Stellplätze im Hof ist eine Einfahrtsberechtigung erforderlich.

Der schöne Altbau bietet fast 4 m hohe Räume und durch viele vorwiegend nach Osten orientierte Fenster viel Licht.
Trotz der zentralen Lage mitten in St. Pölten gibt es selbst bei geöffneten Fenstern keinen Verkehrslärm.

Austattung:
Die Räumlichkeiten wurden bisher als Ordination genutzt. Die Installationen sind verwendbar, eine vollständige Neugestaltung ist aber möglich.
Einige Wände sind in Elementbauweise errichtet und können mit geringem Aufwand verändert werden.
Die Heizung erfolgt über Fernwärme.

Pkw-Stellplätze im Hof sind verfügbar.
Ein Teil des großen Gartens kann exklusiv dazugemietet werden.

Befristung: unbefristet
Beziehbar: nach Vereinbarung

 

Hinweis gemäß Energieausweisvorlagegesetz: Ein Energieausweis wurde vom Eigentümer bzw. Verkäufer, nach unserer Aufklärung über die generell geltende Vorlagepflicht, sowie Aufforderung zu seiner Erstellung noch nicht vorgelegt. Daher gilt zumindest eine dem Alter und der Art des Gebäudes entsprechende Gesamtenergieeffizienz als vereinbart. Wir übernehmen keinerlei Gewähr oder Haftung für die tatsächliche Energieeffizienz der angebotenen Immobilie.

Der Vermittler ist als Doppelmakler tätig.

Lagebeschreibung

Fußgängerzone, Herrenplatz, Domplatz

In der Umgebung
Bus
< 1km
Bahnhof
< 1km
Autobahnanschluss
< 3km
Supermarkt
< 1km
Bäckerei
< 1km
Einkaufszentrum
< 1km
Bank
< 1km
Bankomat
< 1km
Polizei
< 1km
Post
< 1km
Schule
< 1km
Kindergarten
< 1km
Universität
< 2km
Höhere Schule
< 1km
Arzt
< 1km
Apotheke
< 1km
Klinik
< 1km
Krankenhaus
< 2km
Quelle: OpenStreetMap / Entfernungsangaben Luftlinie

Anbieter kontaktieren

Letzte Änderung: 27.12.2025, 09:04:01 Uhr; Referenz-Nummer: 52