Beschreibung
PICHLGUT - Ihr neuer Lieblingsplatz zum Genießen!
Das Wohnprojekt PICHLGUT überzeugt vor allem als idealer Wohn- und Lebensraum für all diejenigen, die das Besondere suchen und schätzen. Auf dem Areal entstehen insgesamt 14 hochwertige Eigentumswohnungen, bestehend aus 2 bis 4 Zimmern und einer Wohnfläche von ca. 43 bis ca. 97 m². Das Gebäude wird in gewohnter Hillebrand Qualität errichtet, zu der selbstverständlich hochwertige und ökonomische Baustoffe gehören.
Wohlfühlatmosphäre.
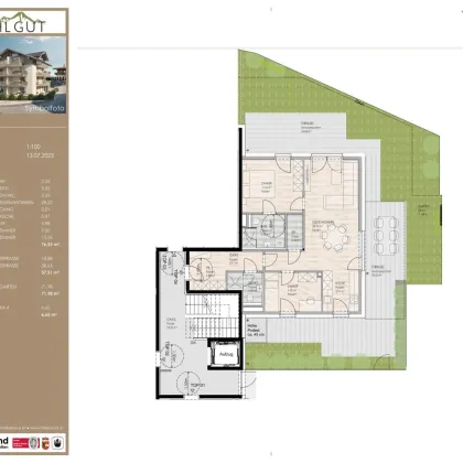
Sie suchen eine Wohnung, in der Sie sich einfach wohlfühlen und gerne leben? Dann wird Sie diese 3-Zimmer-Gartenwohnung mit 77 m² Wohnfläche begeistern!
Schon der geräumige Vorraum vermittelt einen Eindruck von der Großzügigkeit und durchdachten Planung, die sich durch die gesamte Wohnung zieht. Von hier aus erschließt sich die gesamte Wohnung und bietet Platz für eine Garderobe mit viel Stauraum.
Kommunikativer Mittelpunkt der Wohnung ist der helle und freundliche Wohn-, Koch- und Essbereich mit angrenzendem Abstellraum. Hier lässt sich das Familienleben bei gutem Essen, spannenden Geschichten und unterhaltsamen Gesprächen genießen. Sowohl vom Wohnzimmer als auch von den beiden Schlafzimmern aus gelangt man auf die beiden großzügigen und beeindruckenden Terrassen und in den 71 m² großen Garten, der zum Verweilen einlädt. Das Elternschlafzimmer verfügt über ein eigenes Bad en Suite, für Kinder oder Gäste steht ein zweites Badezimmer zur Verfügung.
Ein Kellerabteil sowie ein Tiefgaragenstellplatz komplettieren diese Wohlfühlwohnung.
ECKDATEN
3-ZIMMER-GARTENWOHNUNG
Wohnfläche: 76,55 m²
Garten: 71,98 m²
Terrasse 1: 38,63 m²
Terrasse 2: 18,88 m²
Kellerabteil: 6,62 m²
Kaufpreis Wohnung: EUR 458.000,-
Kaufpreis TG-Stellplatz: EUR 28.500,-
Kaufpreissumme TOP 4: EUR 486.500,-
EDLE AUSSTATTUNGSDETAILS & WOHNHIGHLIGHTS
Unsere Ausstattungsdetails sind mit Bedacht gewählt und schaffen durch ihre Solidität und Qualität einen Mehrwert, an dem Sie lange Zeit Freude haben werden. Sie kreieren eine einzigartige Atmosphäre, die Ihre persönliche Note trägt und ein hohes Komfortniveau bietet:
- Großzügige Freiflächen in Form von Gärten, Balkonen oder Terrassen
- Hochwertiger Echtholzparkettboden, wahlweise als Landhausdiele oder als Schiffboden
- Große Auswahl an erlesenen Fliesen im Format 30x60 cm
- Hochwertige Sanitärausstattungen mit eleganter Markensanitärkeramik und Designarmaturen
- Zwei Bäder in den 3- und 4-Zimmer-Wohnungen
KONTAKT
Für detaillierte Informationen zu unserem Bauprojekt steht Ihnen unser Team sehr gerne zur Verfügung:
Christina Lemberger +43 664 884 925 52
Wir freuen uns auf Ihre Kontaktaufnahme!
Noch nichts gefunden? Wir informieren Sie über geeignete Immobilienangebote noch vor allen anderen.
Legen Sie jetzt Ihren individuellen Suchagenten unter folgendem Link an. Wir schicken Ihnen passende Immobilien exklusiv vorab zu.
Suchagent anlegen - https://hillebrand-immobilienmakler.service.immo/registrieren/de
Lagebeschreibung
Bruck an der Großglocknerstraße ist ein charmantes Örtchen, das seinen Bewohnern ein idyllisches Zuhause bietet. Gelegen am Fuße des majestätischen Großglockners, dem höchsten Berg Österreichs, ist die Lage von Bruck einfach atemberaubend. Die Einwohner sind bekannt für ihre Gastfreundschaft und Offenheit und die Region rund um Bruck ist ein Paradies für Naturliebhaber. Darüber hinaus ist auch die Infrastruktur hervorragend: Es gibt Geschäfte, Restaurants und Cafés, in denen man lokale Spezialitäten und österreichische Köstlichkeiten genießen kann.
Anbieter kontaktieren
Weitere Objekte in diesem Projekt

PICHLGUT: 3-Zimmer-Wohnung im 1. OG, TOP 05
Wohnfläche
Zimmer
Kaufpreis

PICHLGUT: 3-Zimmer-Gartenwohnung, TOP 04
Wohnfläche
Zimmer
Kaufpreis

PICHLGUT: 2-Zimmer-Wohnung im 1.OG, TOP 08
Wohnfläche
Zimmer
Kaufpreis

PICHLGUT: 3-Zimmer-Wohnung im 2.OG, TOP 10
Wohnfläche
Zimmer
Kaufpreis