Trend Logo

Provisionsfrei: 3-Zimmer-Penthouse (Top W13) - Jenbach SONNJOCH

6200 Jenbach / Tirol
134,58 m2
Wohnfläche
3
Zimmer
auf Anfrage
Kaufpreis

Beschreibung

 

 

Die Wohnanlage

Das Projekt „Sonnjoch“ wurde als Terrassenwohnanlage konzipiert und bettet sich treppenförmig in den Südhang am Rotholzerweg ein. Insgesamt stehen 13 Wohnungen und 18 Tiefgaragenplätze zum Verkauf. Die Wohneinheiten sind über das innenliegende Stiegenhaus mit Personenlift erschlossen. Im untersten Geschoß (Ebene 0) befinden sich die Tiefgarage, ein Müllraum, ein Fahrradraum, ein Technikraum, ein Elektroraum und ein weiterer Allgemeinraum. Die Zufahrt zur Tiefgarage ist im südöstlichen Bereich der Wohnanlage situiert. In diesem Bereich stehen auch zwei Besucherparkplätze zur Verfügung. Die Höhensprünge im Gelände erlauben den Zugang zum Stiegenhaus auf drei verschiedenen Ebenen: Entweder über die Tiefgarage im untersten Geschoß, den westlichen Zugangsweg eine Ebene darüber oder über den Zugangsweg im Norden auf Ebene 2. Die Kellerabteile befinden sich im vorwiegend eingeschütteten Bereich des Gebäudes auf Ebene 1. 

 

Unsere 3 Zimmer-Einheiten im Überblick:

Ebene 1 | Top W01: 3 Zimmerwohnung mit 70,10 m² Wohnfläche, 2 Terrassen mit 22,58 m² und 21,35 m²

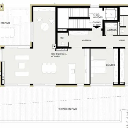
Ebene 4 | Top W13: 3-Zimmer-Penthouse mit 134,58 m² Wohnfläche und 2 Terrassen mit 110,47 m² und 44,26 m²

 

Die Fertigstellung ist erfolgt.

Das Gebäude gestaltet sich selbstbewusst und ohne Kompromisse. Bebauungen in Hanglagen bieten beste Voraussetzungen um durch rückspringende Ebenen dem Bauwerk einerseits optische Eleganz zu verleihen, andererseits für alle Einheiten großzügige Terrassen und Aussichtsszenarien zu schaffen. Durch das durchdachte aber simple Farbkonzept und den stilvollen Materialmix wird die Terrassenwohnanlage zusätzlich aufgelockert. Die Architektur ist die logische Konsequenz unseres Anspruchs die Vorzüge dieses Grundstücks maximal zur Geltung zu bringen und den schönsten Lebensraum für unsere Kunden zu konzipieren. Dabei ist die Optimierung von ästhetischem und praktischem Design die Basis für die Ausgewogenheit zwischen Wohlfühlen und Nutzen in Ihrem neuen Wohnraum. Die Nutzflächen der Wohneinheiten liegen zwischen ca. 48 m² und 134 m². Smarte Grundrisse und die qualitativ hochwertige Ausstattung sind das Resultat unserer jahrelangen Erfahrung in der Entwicklung und Realisierung von Wohnbauten. 

 

Vereinbaren Sie einen Termin mit unserem Projektteam und informieren Sie sich im Detail!  

 

Die Lage

Jenbach ist ein infrastruktureller Dreh- und Angelpunkt im Unterinntal, vor allem durch die Anbindung von ÖBB, Achenseebahn und Zillertalbahn. Ob Einheimische, Pendler oder Touristen – die außerordentlich gute Vernetzung der öffentlichen Verkehrsmittel wird von vielen beansprucht. Die Inntalautobahn und Bundesstraße knüpfen ebenfalls direkt an die Marktgemeinde an. Aufgrund der optimalen verkehrstechnischen Anbindung sind Arbeits- und Freizeitziele komfortabel zu erreichen. Zahllose Wander- und Mountainbikerouten, sowie Loipen und Pisten warten darauf entdeckt zu werden. In unmittelbarer Umgebung befinden sich eine Vielzahl von Nahversorgern, öffentlichen Einrichtungen, Sportstätten und Einkaufsmöglichkeiten. Die 13 Wohneinheiten in südlicher Hanglage befinden sich auf halbem Weg zwischen Bahnhof und Gemeindekern. Neben der exzellenten Lage, punktet das Projekt „Sonnjoch“ mit ganzjähriger Besonnung und einem wunderschönen Blick in beide Richtungen des Inntals. In Abstimmung mit der Gemeinde Jenbach wurde auch der öffentliche Weg westlich des Projektes verbreitert und somit die fußläufige Verbindung zwischen Unter- und Oberdorf maßgeblich verbessert.

 

Weitere Informationen zum Projekt und den Kaufpreisen finden Sie auf unser immocenter-Homepage unter: www.immocenter.tirol/projekt/sonnjoch

 

Kaufnebenkosten
3,50 % Grunderwerbsteuer
1,10 % Eintragung Eigentumsrecht
Vermittlungshonorar provisionsfrei, direkt vom Bauträger
1,80 % + 20 % USt Kaufvertragserrichtung
Beglaubigungskosten

 

Rechtlicher Hinweis
Die Bewerbung, die Übermittlung der Projektunterlagen sowie die Beratung zum Angebot erfolgen über die IC Immobilien Service GmbH. Der Kauf erfolgt direkt und provisionsfrei vom Bauträger.

 

Hier finden Sie unsere Datenschutzinformation.

Wir weisen darauf hin, dass zwischen dem Vermittler und dem zu vermittelnden Dritten ein familiäres oder wirtschaftliches Naheverhältnis besteht.

Der Vermittler ist als Doppelmakler tätig.

In der Umgebung
Bus
< 1km
Bahnhof
< 1km
Autobahnanschluss
< 1km
Arzt
< 1km
Apotheke
< 1km
Schule
< 1km
Kindergarten
< 1km
Supermarkt
< 1km
Bäckerei
< 1km
Bank
< 1km
Bankomat
< 1km
Post
< 1km
Polizei
< 1km
Quelle: OpenStreetMap / Entfernungsangaben Luftlinie

Anbieter kontaktieren

Weitere Objekte in diesem Projekt

Letzte Änderung: 06.11.2025, 10:54:05 Uhr; Referenz-Nummer: 2134