Trend Logo

TOP 2.7 - NEUBAU - ERSTBEZUG - 2 Zimmerwohnung mit eigenem Tiefgaragenplatz

4642 Sattledt / Oberösterreich
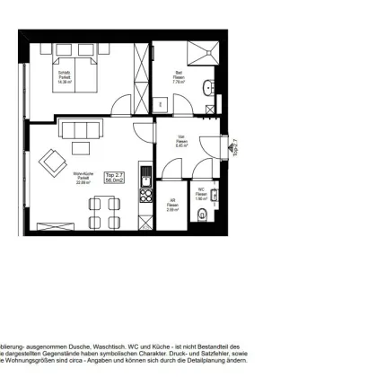
56 m2
Wohnfläche
2
Zimmer
€ 935,28
Bruttomiete

Beschreibung

BESICHTIGUNGEN AB SOFORT

Verfügbare Tops: Top 2.1, Top 2.2, Top 2.3 (Garconnieren/Einzimmerwohnungen)

Top 2.5, Top 2.6, Top 2.7 (Zweizimmerwohnungen)

Im Mietpreis Top 2.7 von € 935,28 brutto sind sämtliche Betriebs- und Heizkosten und ein eigener Tiefgaragenplatz enthalten, Stromkosten extra!

Kaution: € 3000,--

Sehr schöne 2 Zimmerwohnungen, ausgestattet mit hellem Eichenparkett, Aussenrollläden und Küchen mit sämtlichen Geräten, ablösefrei (werden noch eingebaut).

Sattledt ist eine ruhige Gemeinde (ca. 12 Autominuten von Wels) und gilt als Tor zur Ferienregion Pyhrn-Eisenwurzen an der Nord-Süd und Ost-West ( A1 ) Verkehrsverbindung.

Errichtet wird ein Gebäude mit insgesamt 18 Wohnungen und Geschäftsräumlichkeiten. Es handelt sich um Zweizimmerwohnungen, Garconnieren ( Einzimmerwohnung ), 3-Zimmerwohnung und zwei Vierzimmerwohnungen.

Die Dächer und Außenanlagen werden begrünt, teilweise mit Bäumen. Eine schöne Art, der Natur etwas zurückzugeben.

Begrünte Dächer bieten zahlreiche Vorteile: Sie dämmen gegen Hitze und Kälte, was Energie spart und das Klima schützt, verbessern die Luftqualität durch Filterung von Schadstoffen und Bindung von CO2, speichern Regenwasser und entlasten so Kanalsysteme, dämpfen Lärm, verlängern die Lebensdauer der Dachabdichtung und schaffen Lebensräume für Pflanzen und Tiere in Städten. ( Symbolbilder )

GRUNDRISSE DER VERFÜGBAREN WOHNUNGEN IM ANHANG

Die Garconnieren im 2. OG verfügen über kleine Loggien ( Grundrisse ).

Tiefgaragenplätze ( € 60,-- brutto ) und Freiparkplätze ( € 35,-- brutto ) können bei Bedarf zusätzlich angemietet werden.

Kaution: € 2500,-- / € 3500,-- 

Ausgestattet mit schönen Küchen inklusive Geschirrspüler, Kühl- und Gefrierkombination, außenliegender Sonnenschutz, hellen Parkettböden, in den Wohnungen im 2. OG Vinylböden, moderne Bäder mit Duschkabine oder Badewanne.

Glasfaser Internet Anschluss durch die Fa. Nöhmer ( Angebot im Anhang ) oder A1.

Beheizung mittels Fußbodenheizung durch Fernwärme.

Der Immobilienmakler erklärt, dass er – entgegen dem in der Immobilienwirtschaft üblichen Geschäftsgebrauch des Doppelmaklers – einseitig nur für den Vermieter tätig ist.

In der Umgebung
Bus
1km
Autobahnanschluss
1km
Bahnhof
1km
Bank
1km
Bankomat
1km
Post
1km
Polizei
1km
Arzt
1km
Schule
1km
Kindergarten
1km
Supermarkt
1km
Quelle: OpenStreetMap / Entfernungsangaben Luftlinie

Anbieter kontaktieren

Letzte Änderung: 08.10.2025, 10:31:54 Uhr; Referenz-Nummer: 1940