Trend Logo

Wohnqualität auf hohem Niveau - Exklusive Neubauwohnung in begehrter Lage mit hochwertiger Ausstattung und großzügigen Außenflächen

8042 Graz / Steiermark
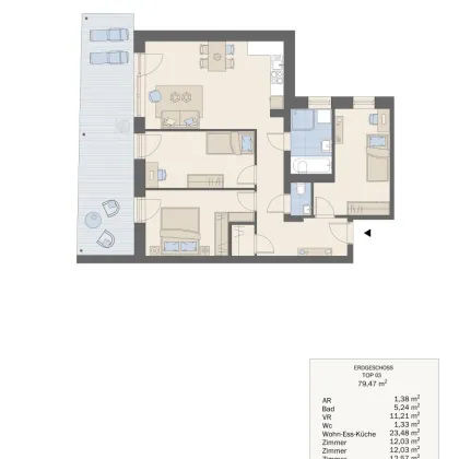
79,47 m2
Wohnfläche
4
Zimmer
€ 529.000,00
Kaufpreis

Beschreibung

Wohnidyll in St. Peter – 4-Zimmer-Gartenwohnung mit Terrasse & hochwertiger Ausstattung

Erstbezug! In absolut ruhiger und beliebter Lage von Graz-St. Peter entsteht bis Juli 2026 ein exklusives Neubauprojekt mit nur 10 Wohneinheiten – ideal für Eigennutzer wie auch Anleger. Die Wohnanlage vereint modernes Design mit naturnahem Wohnen in einem der attraktivsten Bezirke von Graz.

Im Angebot haben wir für Sie eine großzügige 4-Zimmer-Gartenwohnung im Erdgeschoss (Top 03) mit durchdachter Raumaufteilung und sonniger Außenfläche.

Eckdaten:

  • Wohnfläche: 79,47 m²

  • Terrasse: 25,74 m²

  • Garten: 94,08 m²

  • Tiefgaragenplatz optional: € 29.000

  • Kellerabteil inkludiert

Raumaufteilung:

  • Großzügiger Wohn-Essbereich mit ausreichend viel Platz für eine moderne Küche (ca. 23 m²)

  • Drei getrennt begehbare Schlafzimmer

  • Badezimmer Mit Fester und mit bodengleicher Dusche oder Badewanne

  • Separates WC

  • Großzügiger Vorraum mit Garderobenbereich (ca. 11 m²)

  • Praktischer Abstellraum

  • Direkter Zugang zur Terrasse und zum Eigengarten vom Wohnbereich aus

Ausstattung & Highlights:

  • Raumhöhe bis zu 2,65 m für ein großzügiges Wohngefühl

  • Hochwertiger Eichenparkettboden in den Wohn- und Schlafräumen

  • Elektrische Raffstores in allen Wohn- und Schlafzimmern

  • Bäder mit großformatigen Fliesen, bodenebener Dusche oder moderner Badewanne und edlen Armaturen

  • Fußbodenheizung über Luftwärmepumpe, ergänzt durch eine Photovoltaikanlage

  • Sehr gute Energieeffizienz, nachhaltig & zukunftssicher

  • Teils überdachte Terrasse mit hochwertigen Belägen

  • Leerverrohrung für E-Ladestationen in der Tiefgarage

  • Niedrigenergie-Bauweise, hochwertige Bauausführung

Weitere Vorteile:

  • Exklusive Architektur und individuelle Grundrissgestaltung

  • Nur 10 Einheiten – ruhige, familiäre Wohnatmosphäre

  • Ideal für Familien, Paare mit Platzbedarf oder als Vorsorgewohnung

  • Auf Wunsch mit maßgeschneiderter Finanzierungslösung

  • Auch zum attraktiven Anlegerpreis erhältlich

Fertigstellung: Juli 2026

Jetzt vorsorgen und diese großzügige Traumwohnung sichern!
Gerne senden wir Ihnen Grundriss, Baubeschreibung und weitere Unterlagen auf Anfrage zu.

 

Jetzt habe ich Ihr Interesse geweckt? Dann zögern Sie nicht und vereinbaren am besten noch heute Ihren persönlichen Besichtigungstermin unter 0676 740 23 17. Ich freue mich auf Ihren Anruf, Beatrix Scherer, Roderick Scherer Immobilien.

Sie möchten diese Immobilie finanzieren? Gerne zeigen wir Ihnen in einem kostenlosen und unverbindlichen Beratungsgespräch (vor Ort oder online) die aktuellen Möglichkeiten am heimischen Kreditmarkt auf. Unsere Finanzierungsexperten vergleichen für Sie eine Vielzahl von Banken und Bausparkassen, um für Sie die besten Konditionen zu erreichen (Laufzeit, Rate, Eigenmittel). Optimal zugeschnitten auf Ihre Bedürfnisse. Sprechen Sie uns gerne an.

Noch nichts gefunden? Wir informieren Sie über geeignete Immobilienangebote noch vor allen anderen.
Legen Sie jetzt Ihren individuellen Suchagenten unter folgendem Link an. Wir schicken Ihnen passende Immobilien exklusiv vorab zu.
Suchagent anlegen - https://roderick-scherer-immobilien.service.immo/registrieren/de

Wir weisen darauf hin, dass zwischen dem Vermittler und dem zu vermittelnden Dritten ein familiäres oder wirtschaftliches Naheverhältnis besteht.

Der Vermittler ist als Doppelmakler tätig.

Lagebeschreibung

Das Projekt „Wohnidyll in St. Peter“ entsteht in der Peterstalstraße, einer ruhigen Wohnstraße im beliebten Bezirk Graz-St. Peter – einer der gefragtesten Wohnlagen der Stadt. Die Umgebung überzeugt durch viel Grün, gepflegte Wohnbebauung und eine ausgezeichnete Infrastruktur. Vorteile der Lage auf einen Blick: Nahversorgung: Supermärkte, Bäckereien, Apotheken und weitere Einkaufsmöglichkeiten befinden sich in unmittelbarer Nähe. Öffentliche Verkehrsanbindung: Buslinien und Straßenbahn sind in wenigen Gehminuten erreichbar und sorgen für eine schnelle Verbindung in die Innenstadt. Bildungseinrichtungen: Kindergärten, Volks- und Mittelschulen sowie Gymnasien befinden sich ebenso in der Nähe wie die FH Joanneum und die TU Graz. Naherholung und Freizeit: Der Lustbühel, Leechwald, zahlreiche Spazier- und Radwege sowie Sporteinrichtungen laden zur aktiven Erholung ein. Gesundheitsversorgung: Ärztliche Versorgung, Apotheken und das LKH Graz sind schnell erreichbar. Verkehrsanbindung: Die Nähe zur Südautobahn (A2) und zur Gleisdorfer Straße (B65) bietet eine hervorragende Anbindung für Pendler und Autofahrer. Besonderheit: Trotz der hervorragenden Infrastruktur befindet sich das Wohnprojekt in einer ruhigen Seitenstraße – fernab vom Durchzugsverkehr. Die Lage vereint damit urbanes Wohnen mit hoher Lebensqualität in einer grünen, familienfreundlichen Umgebung.

In der Umgebung
Bus
1km
Straßenbahn
1km
Autobahnanschluss
3km
Bahnhof
3km
Arzt
1km
Apotheke
1km
Klinik
3km
Krankenhaus
3km
Schule
1km
Kindergarten
1km
Universität
2km
Höhere Schule
3km
Supermarkt
1km
Bäckerei
1km
Einkaufszentrum
2km
Bankomat
1km
Bank
1km
Post
1km
Polizei
2km
Quelle: OpenStreetMap / Entfernungsangaben Luftlinie

Anbieter kontaktieren

Letzte Änderung: 02.10.2025, 11:34:16 Uhr; Referenz-Nummer: 5420/6588