Beschreibung
PROVISIONSFREI für den Käufer!
Alle verfügbaren Wohnungen finden Sie auf unserer Homepage unter www.mast-immo.at. Um Ihre Suche zu erleichtern, steht Ihnen auf unserer Projektseite www.anderschanze25.at ein Wohnungsnavigator zur Verfügung, der Ihnen hilft, sich einen Überblick über die Lage der einzelnen Wohnungen innerhalb des Komplexes zu verschaffen.
"An der Schanze 25" - Ihr neues Zuhause, Investment und Vorsorge
Das beeindruckende und exklusive Projekt befindet sich im"Quartier Donaufeld" im beliebten 21. Wiener Gemeindebezirk und repräsentiert einen einzigartigen Gebäudekomplex aus vier Bauteilen mit insgesamt 212 exklusiv ausgestatteten Wohnungen.
Zum Verkauf gelangen 58 Wohnungen in Bauteil A, 45 Wohnungen in Bauteil B und 64 Wohnungen in Bauteil D.
EIGENGRUND! - KEINE PACHT!
Die voraussichtliche Fertigstellung ist Ende 2026 geplant.
Highlights der Liegenschaft:
- Naturbezogene Fassadengestaltung die sich perfekt in die Umgebung einfügt
- Direkter Zugang zur Alten Donau über den naturbelassenen Grünzug der am Gebäudeareal angrenzt
- Echtholzböden
- Keramischer Fliesenbelag in den Nassräumen
- 3 - fach verglaste Kunsstofffenster mit Alu Deckschale
- Schließanlage
- Personenlift
- Tiefgarage
- Heizung und Temperierung mittels Bauteilaktivierung
- Jede Wohnung mit Freifläche
Lage: Auto adé
Sollten Sie kein Fahrzeug besitzen, ist das bei dieser Adresse kein Hindernis. Zahlreiche Nahversorger, Dinge des täglichen Bedarfs und selbst das beliebte Donauzentrum mit über 262 Shops, Restaurants und Kino befinden sich unmittelbarer Nähe der Liegenschaft. An heißen Sommertagen lädt die, über einen Grünstreifen verbundene, Alte Donau zum Verweilen ein!
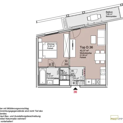
Details Wohnung Bauteil D Top 36:
Die Wohnung befindet sich im 5. Liftstock und verfügt über 42,37 m² Wohnfläche + einen 7,80 m² großen Balkon.
Die Wohnung gliedert sich wie folgt:
- Wohnküche ca. 21,55 m²
- Schlafzimmer ca. 12,20 m²
- Balkon ca. 7,80 m²
- Vorraum ca. 3,21 m²
- Badezimmer ca. 4,12 m²
- separate Toilette ca. 1,29 m²
Der Kaufpreis beträgt für Anleger € 280.000 Netto zzgl. 20% USt.
Auf unserer Homepage finden Sie eine Übersicht zu allen verfügbaren 2-Zimmer-Wohnungen sowie nähere Details dazu.
Wir weisen darauf hin, dass zwischen dem Vermittler und dem zu vermittelnden Dritten ein familiäres oder wirtschaftliches Naheverhältnis besteht.
Der Vermittler ist als Doppelmakler tätig.
Anbieter kontaktieren
Weitere Objekte in diesem Projekt

NEU - Provisionsfreie 3 Zimmer Gartenwohnung bei der Alten Donau!
Wohnfläche
Zimmer
Kaufpreis

*Seltenheit* 3-Zimmer Wohnung mit insgesamt 65 qm Terrasse und Garten!
Wohnfläche
Zimmer
Kaufpreis

Ende 2026! Provisionsfreie 2-Zimmer Wohnung mit Balkon ins Grüne - Donauzentrum und Alte Donau Nähe!
Wohnfläche
Zimmer
Kaufpreis

Alte Donau! Provisionsfreie & exklusive 2-Zimmer Wohnung beziehbar Ende 2026!
Wohnfläche
Zimmer
Kaufpreis