Beschreibung
Zum Verkauf gelangt ein schönes Baugrundstück mit Einreichplanung.
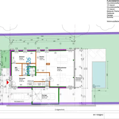
Geplant ist ein Einfamilienhaus auf 3 Ebenen:
EG: Vorzimmer, Wohnzimmer mit offener Küche und Ausgang auf eine Terrasse, Arbeitszimmer, WC
OG: 3 Schlafzimmer mit en-suite Bädern
DG: 2 Schlafzimmer, Bad, WC und 2 Terrassen
Im Keller ist neben der Technik ein großer Raum für Fitness, etc. geplant. Ein Garagenplatz.
Für weitere Auskünfte steht Ihnen gerne Frau Dr. Schlosser unter +43 650 779 15 51 zur Verfügung.
Geplant ist ein Einfamilienhaus auf 3 Ebenen:
EG: Vorzimmer, Wohnzimmer mit offener Küche und Ausgang auf eine Terrasse, Arbeitszimmer, WC
OG: 3 Schlafzimmer mit en-suite Bädern
DG: 2 Schlafzimmer, Bad, WC und 2 Terrassen
Im Keller ist neben der Technik ein großer Raum für Fitness, etc. geplant. Ein Garagenplatz.
Für weitere Auskünfte steht Ihnen gerne Frau Dr. Schlosser unter +43 650 779 15 51 zur Verfügung.
Wir weisen darauf hin, dass zwischen dem Vermittler und dem zu vermittelnden Dritten ein familiäres oder wirtschaftliches Naheverhältnis besteht.
Der Vermittler ist als Doppelmakler tätig.
Pläne
In der Umgebung
Bus
< 1km
U-Bahn
< 3km
Straßenbahn
< 1km
Bahnhof
< 1km
Autobahnanschluss
< 4km
Arzt
< 1km
Apotheke
< 1km
Klinik
< 1km
Krankenhaus
< 1km
Supermarkt
< 1km
Bäckerei
< 1km
Einkaufszentrum
< 4km
Schule
< 1km
Kindergarten
< 1km
Universität
< 2km
Höhere Schule
< 5km
Bankomat
< 1km
Bank
< 1km
Post
< 1km
Polizei
< 1km
Quelle: OpenStreetMap / Entfernungsangaben Luftlinie