Trend Logo

Gartenwohnung - Neu - Korneuburg - Zentrale Lage - Altbau + Zubau + DG Ausbau + Tiefgarage mit 16 Stellplätzen - Provisionsfrei für Sie als Kunde

2100 Korneuburg / Niederösterreich
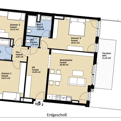
109,83 m2
Wohnfläche
4
Zimmer
€ 599.000,00
Kaufpreis

Beschreibung

Freifinanziertes Wohnungseigentum - Korneuburg - Bahnhofsnähe

Zum Verkauf stehen noch 11 der insgesamt 12 gut geplanten, freifinanzierten Wohneinheiten provisionsfrei für den Käufer!
Das stilvolle Bestandshaus wird komplett saniert und mit dem modernen Zubau sowie einem DG Ausbau ergänzt. Eine Tiefgarage mit 16 Stellpläzen, die optional gekauft werden können komplettieren das Angebot. Die gesamte Wohnanlage wird mit Fernwärme beheizt. Die Übergabe erfolgt Schlüsselfertig OHNE Küche voraussichtlich Mitte 2026.

Die Erschließung des Bestandsgebäudes sowie des Zubaus erfolgt über das Stiegenhaus sowie einer modernen Liftanlage. Die Wohnungen verfügen über gut nutzbare Freiflächen in Form von Eigengarten, Balkon, Loggia oder Terrasse.


In der Tiefgarage entstehen 16 Stellplätzen , sie können optional angekauft werden.

Die geschätzten Betriebskosten belaufen sich vorraussichtlich auf: 2,4 Euro/ qm WNFL pro Monat. Dazu kommen 0,90 Euro/qm WNFL pro Monat für Instandhaltung.


Die Wohnungen sind voraussichtlich Mitte 2026 bezugsfertig. Wir schicken Ihnen gerne detaillierte Verkaufsunterlagen zu!


Bitte beachten Sie, dass wir aufgrund der Nachweispflicht gegenüber dem Eigentümer nur Anfragen mit Angabe Ihrer Kontaktdaten mit Name, Telefonnummer und Anschrift bearbeiten.

Wir möchten darauf aufmerksam machen, dass wir mit dem Bauträger eine regelmäßige Geschäftsbeziehung haben und darum in einem wirtschaftlichen Naheverhältnis stehen!

Für weitere Informationen, sowie die Vereinbarung eines unverbindlichen Gesprächstermins und zur Planeinsicht steht Ihnen Frau Dipl. Ing. Birgit Hofbauer - Domin unter 0699/ 1616 8552 gerne zur Verfügung. E MAIL Anfragen richten Sie bitte an: hofbauer@valorous-immobilien.at

Lagebeschreibung

In der nahen Umgebung finden sich ein Lebensmittelmarkt, Gasthäuser, das Stadtzentrum von Korneuburg und der Bahnhof Korneuburg

In der Umgebung
Bus
< 1km
Autobahnanschluss
< 2km
Bahnhof
< 1km
Schule
< 1km
Kindergarten
< 1km
Supermarkt
< 1km
Bäckerei
< 1km
Bank
< 1km
Bankomat
< 1km
Post
< 1km
Polizei
< 1km
Arzt
< 3km
Apotheke
< 1km
Krankenhaus
< 1km
Klinik
< 5km
Quelle: OpenStreetMap / Entfernungsangaben Luftlinie

Anbieter kontaktieren

Letzte Änderung: 02.10.2025, 12:07:34 Uhr; Referenz-Nummer: 16658